Vuokrataan toimistotilat - Helsinki
Eteläesplanadi 12, Keskusta, 00130 Helsinki #10859005
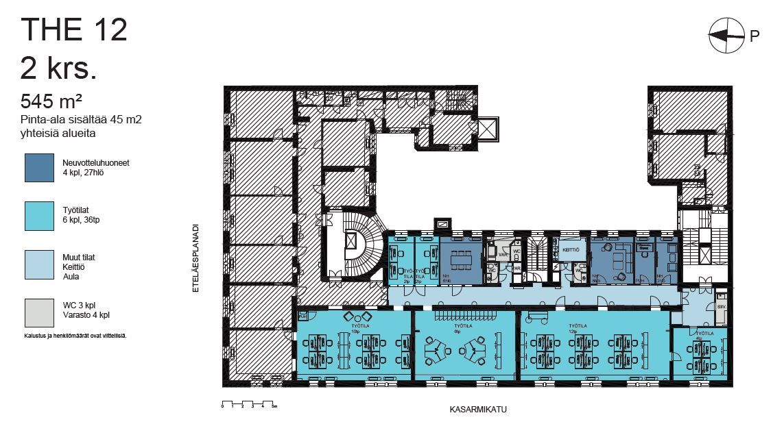
Rakennuksen kuvaus:
Yksi ydinkeskustan näyttävimpiä arvokiinteistöjä, Eteläesplanadi 12 on vuonna 1899 rakennettu kaunis toimistorakennus. Kivitalosta on upeat näkymät Esplanadin puistoon. Rakennus sijaitsee paraatipaikalla keskustassa, alueen palvelujen ympäröimänä. Vain lyhyellä kävelyetäisyydellä sijaitsee muun muassa lukuisia, tasokkaita lounas- ja iltaravintoloita. Toimistotilat ovat käytännölliset, sopii avotilaksi ja tekniikka on moderni. Talossa on yhteiskäyttöiset suihkutilat ja näyttävät sisäänkäynnit.
Tilan kuvaus:
Vaativalle yritykselle edustava toimistotila, joka suunnitellaan ja muokataan asiakkaan toiveiden mukaan. Korkeaa tilaa, kauniita yksityiskohtia ja hyvät lähtökohdat tulevaisuuden toimistotilaksi. Tilasta on hieman näkymää Espan puistoon. Talon kattokerroksessa edustava, erikseen vuokrattava edustustila, jossa, sauna, suuri kokoustila takkoineen, kattoterassi. Tilaan kohdistuu jyvitys kiinteistön yhteisistä tiloista, noin 48m2 (sis. kokonaisneliömäärään). Tilan sisäänkäynti Eteläesplanadilta.
Kerros: 2
