Vuokrataan toimistotilat - Helsinki
Aleksanterinkatu 19, Keskusta, 00100 Helsinki #10859003
Rakennuksen kuvaus:
Aleksi-Hermeksen kaunis arvokiinteistö sijaitsee kaupungin parhaalla paikalla Aleksanterinkadun ja Keskuskadun kulmassa, Stockmannia vastapäätä aivan Helsingin ytimessä. Uniikin talon toimistot ovat viihtyisät ja omaleimaisen niistä tekee erityisesti korkea huonekorkeus. Sijaintinsa ansiosta kohde on saavutettavissa helposti kaikilla julkisilla liikennevälineillä ja kiinteistön välittömässä läheisyydessä on myös useita pysäköintilaitoksia. Lisäksi taloa ympäröi kaikki keskustan alueen palvelut ja ravintolat.
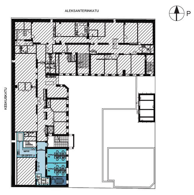
Tilan kuvaus:
kuudennen kerroksen toimisto historiallisessa arvokiinteistössä. Muutamasta huoneesta koostuva tila, jossa suuri keittiö omalla kylmiöllä. Kiinteistöllä upea sijainti Aleksanterinkadun ja Keskuskadun kulmassa ja itse tila sijaintee talon Keskuskadun puoleisessa osassa. Ikkunoista sisäpihanäkymät. Sisäänkäynti toimistoon osoitteesta Keskuskatu 4. Indikatiivinen vuokra 5120e/kk+ALV. Tila on myös mahdollista jakaa 101,50 tilaan jolloin vuokra 3248e/kk+ALV
Kerros: 6
