Vuokrataan liiketilat - Helsinki
Itämerenkatu 21, Ruoholahti, 00180 Helsinki #10858984
Ruohis | Itämerenkatu 21 - Liiketila 172,9 m²
Osoite
Itämerenkatu 21, 00180 Helsinki
Tilatyyppi
Liiketilaa
173 m2
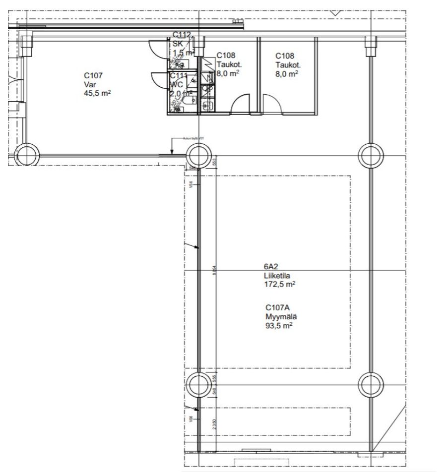
Pohjapiirros
Kiinteistö
Ruohiksen ensimmäisen kerroksen 172,9 m² liiketila tarjoaa näkyvän ja helposti saavutettavan sijainnin keskeisellä paikalla. Tila sopii erinomaisesti myymälä- tai palveluliiketoimintaan, ja sen toimiva pohjaratkaisu tekee arjen sujuvaksi: takahuonekokonaisuudessa on minikeittiö, wc sekä erillinen toimistohuone. Lisäksi varastoalueelta on suora ja vaivaton yhteys lastauslaiturille, mikä helpottaa tavaraliikennettä ja vastaanottoa. Tila ei sovellu ravintolakäyttöön.
Ruohis | Itämerenkatu 21
Rakennus on valmistunut vuonna 1978 ja kohoaa kahdeksaan kerrokseen, tarjoten joustavia toimitilaratkaisuja keskellä Ruoholahtea.
Sijainti – Ruoholahden parhaalla paikalla
Itämerenkatu 21 sijaitsee Ruoholahden sydämessä, samassa korttelissa tunnetun kauppakeskuksen kanssa. Alueella on pitkä historia logistiikan ja kaupan keskittymänä, ja nykyään se tarjoaa yrityksille poikkeuksellisen keskeisen sijainnin, jossa arjen sujuvuus on taattu. Metroasema löytyy aivan kadun toiselta puolelta, ja raitiovaunut pysähtyvät käytännössä rakennuksen edessä. Autolla saapuminen on yhtä vaivatonta – kulku toimii sekä keskustasta että Länsiväylältä, ja laajassa parkkihallissa on reilusti paikoitustilaa.
Palvelut – Kaikki tärkeä työpäivän ympärillä
Kiinteistö ja sen välitön ympäristö tarjoavat kattavan palvelukokonaisuuden, joka tukee työntekoa ja hyvinvointia. Läheltä löytyvät lounasravintolat ja kahvilat, päivittäistavarakauppa sekä hyvinvointipalveluja, jotka tekevät työpäivän sujumisesta entistä helpompaa. Rakennuksessa on käytettävissä kuntosali, ja autoilijoita palvelevat sekä parkkihalli että sähköautojen latauspisteet.
Julkinen liikenne toimii erinomaisesti: metro, raitiovaunu ja bussi ovat aivan vieressä, ja myös juna-asemalle on noin 1,6 kilometriä ja lentokentälle on noin 20 kilometriä.
Vastuullisuus
Itämerenkatu 21 on sitoutunut vastuulliseen kiinteistönpitoon. Kohteella on BREEAM Very Good -ympäristösertifikaatti, ja kiinteistö käyttää kotimaista tuulivoimalla tuotettua sähköä, mikä vähentää hiilijalanjälkeä ja tukee kestävää energiankäyttöä.
Ota yhteyttä
Kiinnostuitko? Ota yhteyttä ja tule tutustumaan!
Toimitilavälityspalvelumme on tilanhakijalle maksuton.
Ruohis | Itämerenkatu 21
Rakennus on valmistunut vuonna 1978 ja kohoaa kahdeksaan kerrokseen, tarjoten joustavia toimitilaratkaisuja keskellä Ruoholahtea.
Sijainti – Ruoholahden parhaalla paikalla
Itämerenkatu 21 sijaitsee Ruoholahden sydämessä, samassa korttelissa tunnetun kauppakeskuksen kanssa. Alueella on pitkä historia logistiikan ja kaupan keskittymänä, ja nykyään se tarjoaa yrityksille poikkeuksellisen keskeisen sijainnin, jossa arjen sujuvuus on taattu. Metroasema löytyy aivan kadun toiselta puolelta, ja raitiovaunut pysähtyvät käytännössä rakennuksen edessä. Autolla saapuminen on yhtä vaivatonta – kulku toimii sekä keskustasta että Länsiväylältä, ja laajassa parkkihallissa on reilusti paikoitustilaa.
Palvelut – Kaikki tärkeä työpäivän ympärillä
Kiinteistö ja sen välitön ympäristö tarjoavat kattavan palvelukokonaisuuden, joka tukee työntekoa ja hyvinvointia. Läheltä löytyvät lounasravintolat ja kahvilat, päivittäistavarakauppa sekä hyvinvointipalveluja, jotka tekevät työpäivän sujumisesta entistä helpompaa. Rakennuksessa on käytettävissä kuntosali, ja autoilijoita palvelevat sekä parkkihalli että sähköautojen latauspisteet.
Julkinen liikenne toimii erinomaisesti: metro, raitiovaunu ja bussi ovat aivan vieressä, ja myös juna-asemalle on noin 1,6 kilometriä ja lentokentälle on noin 20 kilometriä.
Vastuullisuus
Itämerenkatu 21 on sitoutunut vastuulliseen kiinteistönpitoon. Kohteella on BREEAM Very Good -ympäristösertifikaatti, ja kiinteistö käyttää kotimaista tuulivoimalla tuotettua sähköä, mikä vähentää hiilijalanjälkeä ja tukee kestävää energiankäyttöä.
Ota yhteyttä
Kiinnostuitko? Ota yhteyttä ja tule tutustumaan!
Toimitilavälityspalvelumme on tilanhakijalle maksuton.
Vapautuu
Kysy
Kerros
1
Ota yhteyttä
Logistila Oy
Kylätie 11-13, 00320 HELSINKI
Karoliina Turppo
Näytä puhelinnumero
050 345 3258
Pyydä lisätietoa
