Vuokrataan toimistotilat - Helsinki
Elimäenkatu 30, Vallila, 00520 Helsinki #10858935
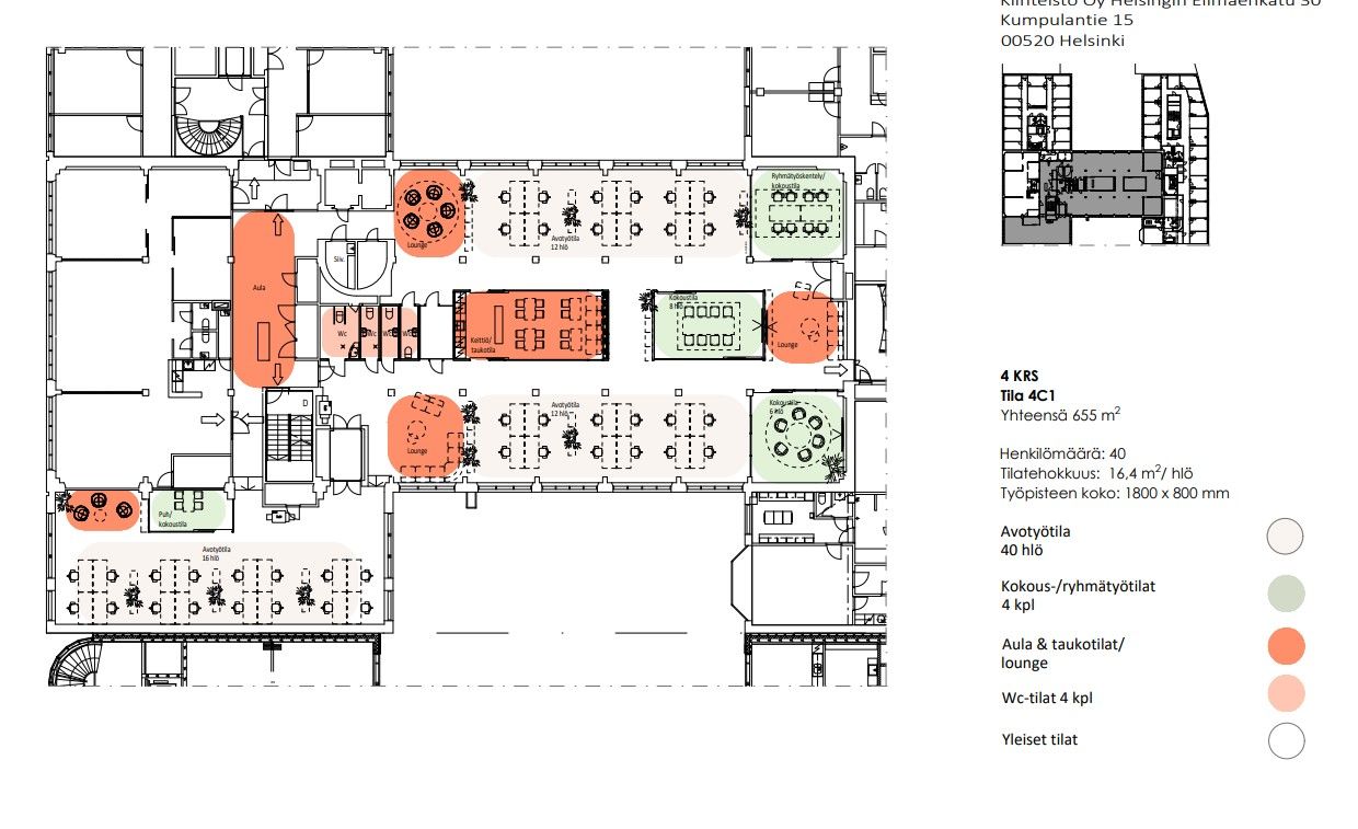
Vuokrataan hyvätasoista muuntojoustavaa toimitilaa kiinteistöstä Elimäenkatu 30/Kumpulantie 5. Tilat ovat nykymuodossaan kombitoimistoa ja ne muokataan vuokralaisen toiveita vastaaviksi sekä pohjaratkaisun että materiaalien osalta. Talotekniikka on modernia ja ajanmukaista tässä vuonna 1999 valmistuneesta kiinteistössä; mm. huoneistokohtainen jäähdytys, CAT 6-kaapelointi, kulunvalvonta ym. Tilaan on myös tavarahissiyhteys. Huom! Kuvat ovat esimerkkikuvia kiinteistön tiloista. Ota yhteyttä ja sovi esittely, vuokrauspalvelumme on tilanhakijoille maksuton.
Hissi
Senaatin Notariaatti Oy LKV
Lämmittäjänkatu 4 A
FIN-00880 Helsinki
Tel:
Näytä puhelinnumero
+358 9 7745 100
