Vuokrataan toimistotilat - Helsinki
Elimäenkatu 28, Vallila, 00520 Helsinki #10858933
Vapaata toimitilaa Elimäenkadulla.
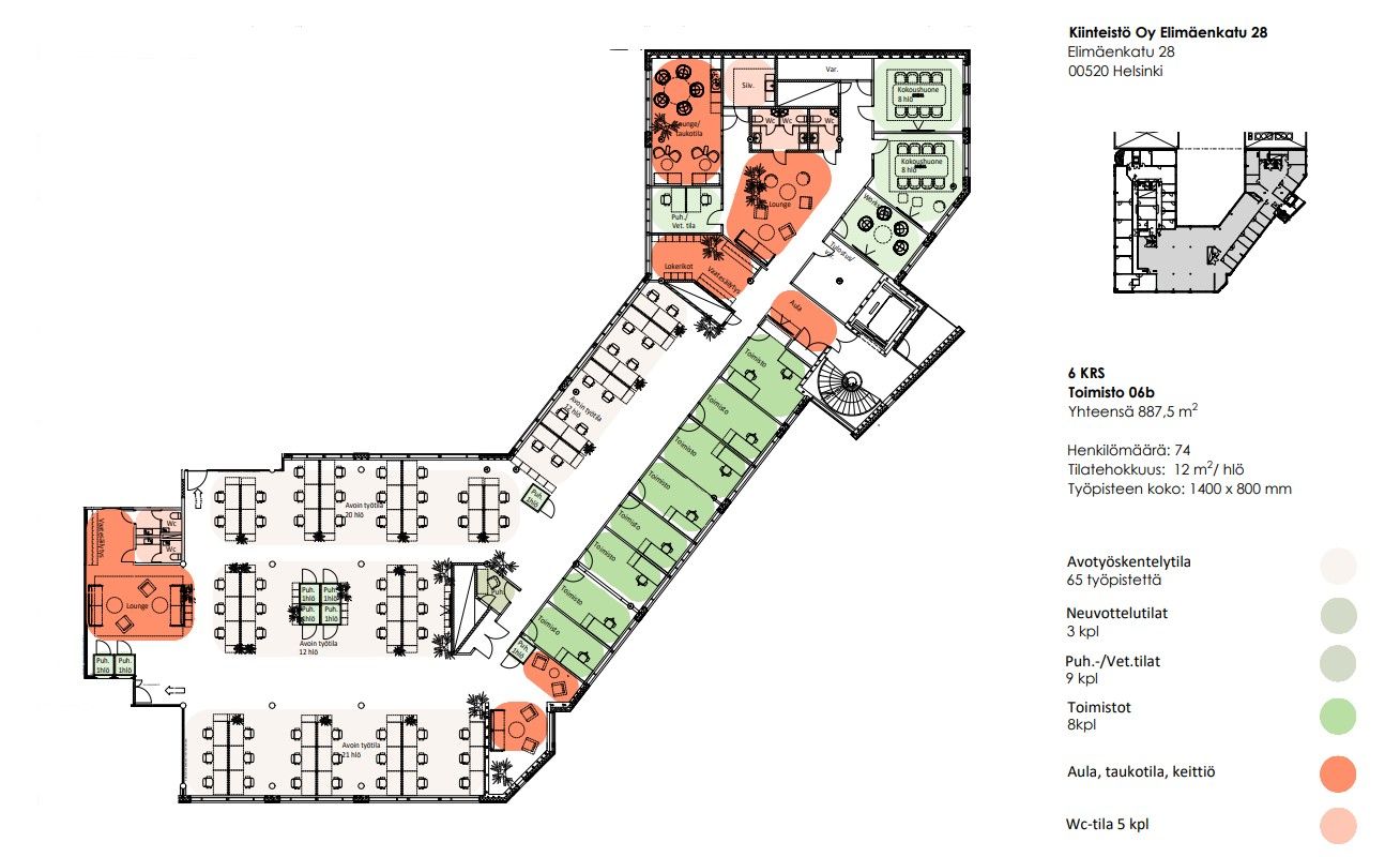
Elimäenkatu 28 tarjoaa yrityksille siistit ja tehokkaat teollisuushenkiset toimitilat. Tilat ovat pääosin avokonttorina, mutta kiinteistöstä löytyy myös erillisiä työhuoneita ja neuvottelutiloja. Useimpiin tiloihin tulee tavarahissi. Omassa autohallissa on 254 paikkaa ja sen lisäksi paikkoja on mahdollista vuokrata viereisen rakennuksen pysäköintihallista. Alueella on paljon lounaspalvelutarjontaa. Tilat räätälöidään vuokralaisen toiveiden ja tarpeiden mukaan. Soita ja sovi esittely!
Näkyvällä paikalla
Hissi
Senaatin Notariaatti Oy LKV
Lämmittäjänkatu 4 A
FIN-00880 Helsinki
Tel:
Näytä puhelinnumero
+358 9 7745 100
