Vuokrataan toimistotilat - Jyväskylä
Tikkutehtaantie 1, Vaajakoski, 40800 Jyväskylä #10858925
Vuokrataan toimistotilaa Vaajakoskelta
Osoite
Tikkutehtaantie 1, 40800 Jyväskylä
Tilatyyppi
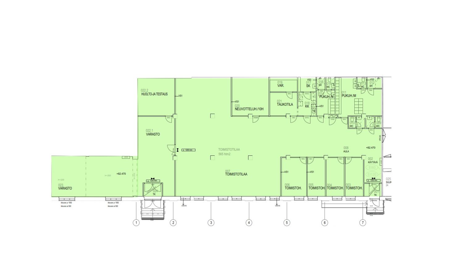
Toimistotilaa
565 m2
Tilajako
Jaettavissa
Muuta
Vaajakosken Varassaaressa heti vapaa toimistokäyttöön soveltuva katutason 565 m2 tila. Hyvät sosiaalitilat ja keittiö. Isolta osin avointa tilaa, muutama pienempi erillinen toimistohuone. Samassa kiinteistössä toimii mm. lounasravintola ja alueelta löytyy mm. kuntosalit. Hyvät liikenneyhteydet alueelta niin julkisilla kuin omalla autolla. Vaajakosken palvelut n. 1 kilometrin päässä. Soita ja kysy lisää.
Vapautuu
Kysy
Kerros
1
Jaettavissa
Ota yhteyttä
Infonia Oy
Kauppakatu 18 A, 40100 Jyväskylä
Näytä puhelinnumero
+358 407579731
Mikko Hirvi
Näytä puhelinnumero
+358 407579731
Pyydä lisätietoa
