Vuokrataan tuotantotilat - Jyväskylä
Tikkutehtaantie 2, Vaajakoski, 40800 Jyväskylä #10858924
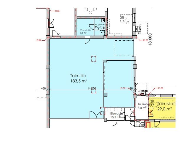
Vuokrataan heti vapaa tuotantotila Vaajakoskelta
Osoite
Tikkutehtaantie 2, 40800 Jyväskylä
Tilatyyppi
Tuotantotilaa
183,5 m2
Muuta
Vaajakosken Varassaaressa heti vapaa nosto-ovellinen tuotantotila jossa valmiudet monentyyppiseen toimintaan. Vaajakosken palvelut n. kilometrin päässä, nopeat liikenneyhteydet eri suuntiin. Tilan vieressä vapaana myös n. 70 m2 toimistokäyttöön soveltuva tila. Alueella toimii mm. lounasravintola ja kuntosali. Soita ja kysy lisää!
Vapautuu
Kysy
Kerros
1
Ota yhteyttä
Infonia Oy
Kauppakatu 18 A, 40100 Jyväskylä
Näytä puhelinnumero
+358503523143
Katja Shemeikka
Pyydä lisätietoa
