Vuokrataan toimistotilat - Jyväskylä
Tikkutehtaantie 2, Vaajakoski, 40800 Jyväskylä #10858922
Vuokrataan työtilaa Vaajakoskelta
Osoite
Tikkutehtaantie 2, 40800 Jyväskylä
Tilatyyppi
Toimistotilaa
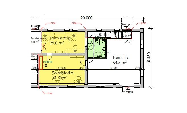
70,5 m2
Muuta
Vaajakosken Varassaaressa heti vapaa kahdesta 29 m2 + 41,5 m2 huoneesta koostuva työtila. Vaajakosken palvelut n. kilometrin päässä, nopeat liikenneyhteydet eri suuntiin. Alueella toimii mm. lounasravintola ja kuntosali. Soita ja kysy lisää!
Vapautuu
Kysy
Kerros
1
Ota yhteyttä
Infonia Oy
Kauppakatu 18 A, 40100 Jyväskylä
Näytä puhelinnumero
+358503523143
Katja Shemeikka
Pyydä lisätietoa
