Vuokrataan toimistotilat - Helsinki
Bulevardi 44, Punavuori, keskusta, 00120 Helsinki #10858868
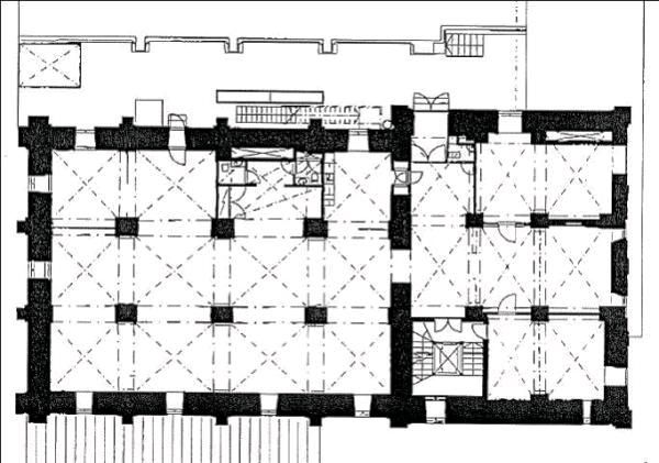
Rakennuksen kuvaus:
Bulevardin kiltakellari on vanha panimorakennus rakennettu vuonna 1885 ja sitemmin saneerattu vuonna 1999. Rakennuksen on suunnitellut Theodor Höjer. Rakennusta koristaa kauniit holvikaaret, tiiliseinät, jykevät kattopalkit ja hirsilattiat, mutta tilat ovat modernisoitu nykyvaatimusten mukaisiksi. Huonekorkeus vaihtelee. Talossa on Sodexon lounasravintola, jossa kabinetteja ja mahdollisuus järjestää suuriakin tilaisuuksia. Lämpimiä hallipaikkoja samassa korttelissa.
Tilan kuvaus:
Persoonallinen toimisto, joka pääosin avotilaa. Toimistossa uniikkeja kaarimuotoja ja -ikkunoita. Modernisti varustettu toimisto, joka nykykunnossaankin muuttovalmis. Oheisessa pohjakuvassa tila näkyy vasemmalla puolella ja valokuvat ovat kyseisestä tilasta sen nykymuodossa.
Kerros: 3
