Vuokrataan toimistotilat, liiketilat, tuotantotilat, varastotilat, muut tilat - Pirkkala
Autokeskuksentie 12, Linnakallio, 33960 Pirkkala #10858844
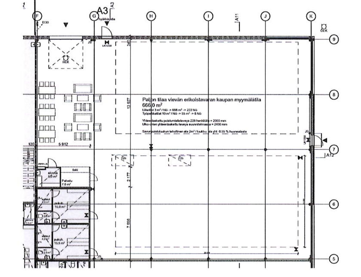
Myymälätila Linnakalliossa
Osoite
Autokeskuksentie 12, 33960 Pirkkala
Tilatyyppi
Toimistotilaa
735 m2
Liiketilaa
735 m2
Tuotantotilaa
735 m2
Varastotilaa
735 m2
Muuta tilaa
735 m2
Yhteensä
735 - 1470 m2
Kiinteistö
Uudenveroista myymälätilaa huippuhyvällä sijainnilla Pirkkalan Linnakalliossa! Toiminut aiemmin liikuntatilana, joten hyvät pukuhuonetilat valmiina. Parkkipaikkoja paljon tilan edessä. Tilaan on kaksi käyntiovea sekä nosto-ovi. Pääosin avointa tilaa.
Heti vapaa 735m2 tila sijaitsee kehätien varressa, vahvasti kehittyvällä ja kasvavalla alueella, joka soveltuu erinomaisesti liike-, varasto- ja tuotantotoimintaan.
Vuonna 2029 vapautuu myös viereinen erittäin näyttävä 735m2 tila, jotka ovat yhdistettävissä 1470m2 tilaksi. Tällöin käytössä myös reilusti pihatilaa.
Heti vapaa 735m2 tila sijaitsee kehätien varressa, vahvasti kehittyvällä ja kasvavalla alueella, joka soveltuu erinomaisesti liike-, varasto- ja tuotantotoimintaan.
Vuonna 2029 vapautuu myös viereinen erittäin näyttävä 735m2 tila, jotka ovat yhdistettävissä 1470m2 tilaksi. Tällöin käytössä myös reilusti pihatilaa.
Vapautuu
Kysy
Kerros
1.
Ota yhteyttä
Logistila Oy
Kalevan puistotie 22 LT 4, 33500 Tampere
Jukka Nukari
Näytä puhelinnumero
0440759789
Pyydä lisätietoa
