Vuokrataan toimistotilat - Kuopio
Volttikatu 4, Savilahti, 70700 Kuopio #10858789
Vuokrattavana toimistotilaa Kuopion Savilahdesta.
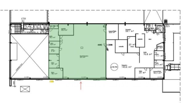
Tämä 410 m² toimistotila sijaitsee kiinteistön 2. kerroksessa. Toimistossa on sekä huoneita että avotilaa.
Volttikatu 4 sijaitsee Kuopion Savilahden kehittyvällä yritysalueella. Autopaikkoja on sekä pihalla että hallissa. Alueelle on hyvät liikenneyhteydet.
Kysy lisää numerosta 044 723 4700 tai info@bref.fi. Palvelumme on tilanhakijoille ilmainen.
Osoite
Volttikatu 4, 70700 Kuopio
Tilatyyppi
Toimistotilaa
410 m2
Palvelut
Alueella toimii erilaisia erikoisliikkeitä ja päivittäispalveluja tarjoavia yrityksiä.
Vapautuu
Kysy
Kerros
2
Energiatehokkuusluokka
Ei lain edellyttämää energiatodistusta
Ota yhteyttä
Bureau Real Estate Finland Oy
Lars Sonckin kaari 16, 02600 Espoo
Näytä puhelinnumero
0447234700
Bureau Real Estate Finland Oy
https://www.bref.fiPyydä lisätietoa
