Videoesittely
Vuokrataan liiketilat - Helsinki
Unioninkatu 18, Kaartinkaupunki, 00130 Helsinki #10858781
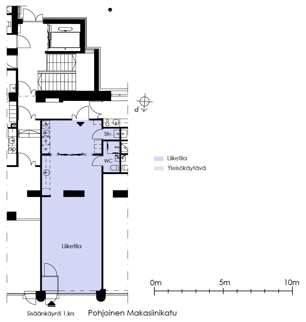
Siistikuntoinen ja tehokaspohjainen katutason liiketila viihtyisässä Kaartinkaupungissa. Tilassa on isot näyteikkunat Pohjoiselle Makasiinikadulle.
Osoite
Unioninkatu 18, 00130 Helsinki
Tilatyyppi
Liiketilaa
57 m2
Pohjapiirros
Kiinteistö
Tämän 1930-luvulla valmistuneen talon tilat ovat viihtyisät ja muuntuvat joko työhuoneiksi tai avokonttorikäyttöön.
Kiinteistön katutasossa on liiketiloja, joissa on isot näyteikkunat. Osa tiloista tarjoaa parvekkeet kahteen suuntaan. Kiinteistön käyttäjät voivat hyödyntää myös naapuritalon nykyaikaisia neuvottelutiloja.
Unioninkatu 18 toimistoille on myönnetty BREEAM In-Use Excellent -tason ympäristösertifikaatti ja se toimii 100 % päästöttömällä energialla, kuten tuulisähköllä ja uusiutuvalla kaukolämmöllä. Lisäksi katolle asennettu aurinkovoimala tuottaa uusiutuvaa energiaa kiinteistön käyttöön.
Tämä Unioninkadun toimisto- ja liiketilakiinteistö sijaitsee Kaartinkaupungissa. Lyhyen kävelymatkan päässä on useita ravintoloita ja hotelleja, jotka sopivat vaativaankin makuun. Aivan vieressä on muitakin keskustan helmiä, kuten Vanha kauppahalli ja Tähtitorninmäen sekä Esplanadin puistot. Kaartinkaupunki on uuden ja vanhan viehättävä sekoitus. Keskellä Helsinkiä, mutta omassa rauhassaan.
Kiinteistön katutasossa on liiketiloja, joissa on isot näyteikkunat. Osa tiloista tarjoaa parvekkeet kahteen suuntaan. Kiinteistön käyttäjät voivat hyödyntää myös naapuritalon nykyaikaisia neuvottelutiloja.
Unioninkatu 18 toimistoille on myönnetty BREEAM In-Use Excellent -tason ympäristösertifikaatti ja se toimii 100 % päästöttömällä energialla, kuten tuulisähköllä ja uusiutuvalla kaukolämmöllä. Lisäksi katolle asennettu aurinkovoimala tuottaa uusiutuvaa energiaa kiinteistön käyttöön.
Tämä Unioninkadun toimisto- ja liiketilakiinteistö sijaitsee Kaartinkaupungissa. Lyhyen kävelymatkan päässä on useita ravintoloita ja hotelleja, jotka sopivat vaativaankin makuun. Aivan vieressä on muitakin keskustan helmiä, kuten Vanha kauppahalli ja Tähtitorninmäen sekä Esplanadin puistot. Kaartinkaupunki on uuden ja vanhan viehättävä sekoitus. Keskellä Helsinkiä, mutta omassa rauhassaan.
Sijainti
Unioninkatu sijaitsee Helsingin ydinkeskustassa Kauppatorin, Esplanadin sekä Kasarmintorin välittömässä läheisyydessä. Lähin raitiovaunupysäkki on Kauppatorilla ja lähin metroasema Kluuvissa.
Pysäköinti
Q-park Kasarmitori ja Erottaja
Palvelut
Alueella on ravintoloita, hotelleja sekä neuvottelukeskuksia. Kauppahalli ja kauppatori ovat myös aivan kohteen lähellä.
Kulkuyhteydet
Lähimmälle bussipysäkille 50 m
Lähimmälle juna-asemalle 1 km
Lähimmälle metroasemalle 800 m
Lähimmälle raitiovaunupysäkille 150 m
Lentokentälle 25 min
Lähimmälle juna-asemalle 1 km
Lähimmälle metroasemalle 800 m
Lähimmälle raitiovaunupysäkille 150 m
Lentokentälle 25 min
Vapautuu
Kysy
Rakennusvuosi
1933
Kerros
1
Energiatehokkuusluokka
B2018
Ympäristöluokitus
BREEAM In-Use Excellent,GRESB Global Sector Leader 2025
Ota yhteyttä
Sponda Oy
Yrjönkatu 29C, 00100 Helsinki
Näytä puhelinnumero
020 43131
Magnus Öster
Director, Leasing
Näytä puhelinnumero
+358 40 768 4926
Sponda Oy
https://www.sponda.fiPyydä lisätietoa
