Vuokrataan toimistotilat - Raisio
Vuorelankatu 3, Leilikallio, 21280 Raisio #10858742
Toimistotilaa
Osoite
Vuorelankatu 3, 21280 Raisio
Tilatyyppi
Toimistotilaa
709 m2
Kiinteistö
Toimistotilaa Kehätien välittömässä läheisyydessä
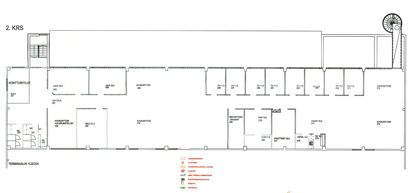
Vuokrataan avaraa ja valoisaa, siistiä toimistotilaa Vuorelankadulta läheltä 'Ikean liittymää'. Nämä toisen kerroksen tilat koostuvat avotoimistolohkoista, erikokoisista työhuoneista, taukotilasta, neuvotteluhuoneesta, arkistohuoneesta ja wc-tiloista. Työskentelymukavuutta tuo mahdollisuus sekä jaettuihin, että omiin 1 henkilön työhuoneisiin. Pinnat ovat siistissä kunnossa.
Pohjaratkaisuun voidaan tehdä muutoksia.
Tilat on viilennetty ja niissä on hyvä ilmanvaihto. Tilan osittaisesta vuokraamisesta noin 420 m2 kokoiseen tilaan on myös mahdollisuus.
Pysäköinti onnistuu joustavasti aivan rakennuksen edessä.
Kiinteistöstä löytyy myös vuokrattavaa terminaalitilaa.
Olisiko tässä yrityksenne uusi tukikohta? Ota yhteyttä ja sovitaan tilakäynti.
Vuokrataan avaraa ja valoisaa, siistiä toimistotilaa Vuorelankadulta läheltä 'Ikean liittymää'. Nämä toisen kerroksen tilat koostuvat avotoimistolohkoista, erikokoisista työhuoneista, taukotilasta, neuvotteluhuoneesta, arkistohuoneesta ja wc-tiloista. Työskentelymukavuutta tuo mahdollisuus sekä jaettuihin, että omiin 1 henkilön työhuoneisiin. Pinnat ovat siistissä kunnossa.
Pohjaratkaisuun voidaan tehdä muutoksia.
Tilat on viilennetty ja niissä on hyvä ilmanvaihto. Tilan osittaisesta vuokraamisesta noin 420 m2 kokoiseen tilaan on myös mahdollisuus.
Pysäköinti onnistuu joustavasti aivan rakennuksen edessä.
Kiinteistöstä löytyy myös vuokrattavaa terminaalitilaa.
Olisiko tässä yrityksenne uusi tukikohta? Ota yhteyttä ja sovitaan tilakäynti.
Vapautuu
Kysy
Kerros
2.
Ota yhteyttä
Logistila Oy
Tuureporinkatu 6, 20100 TURKU
Stina Lindroos
Näytä puhelinnumero
044 972 9468
Pyydä lisätietoa
