Vuokrataan toimistotilat - Helsinki
Porkkalankatu 20, Ruoholahti, 00180 Helsinki #10858741
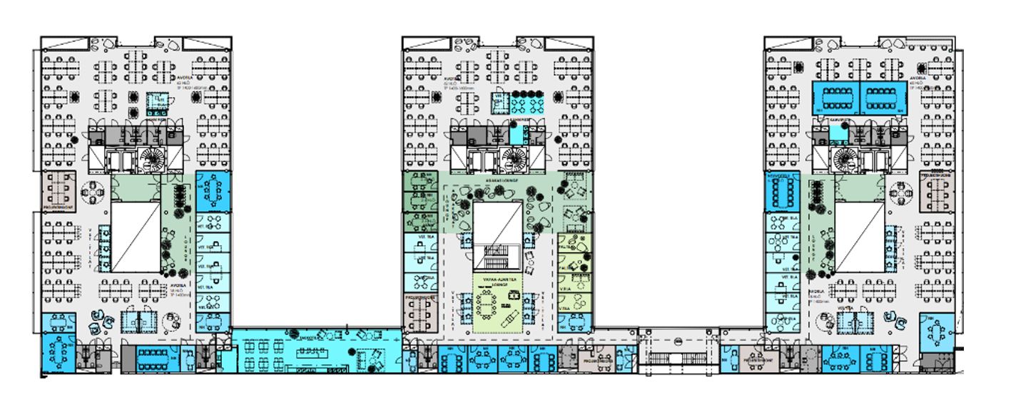
Porkkalankatu 20 - Toimisto 3000 m²
Osoite
Porkkalankatu 20, 00180 Helsinki
Tilatyyppi
Toimistotilaa
3000 m2
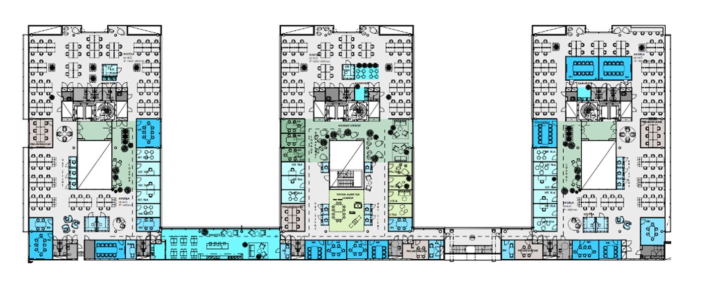
Pohjapiirros
Kiinteistö
Tämä suuri ja yhtenäinen toimistokokonaisuus tarjoaa erinomaiset puitteet kasvavalle tai tilaa kaipaavalle organisaatiolle. Tila on valmiiksi hyväkuntoinen ja käyttövalmis, mutta se voidaan tarvittaessa remontoida täysin asiakkaan toiveiden mukaisesti. Kokonaisuutta on myös mahdollista jakaa pienempiin, toimiviin tilakokonaisuuksiin, mikä tekee siitä joustavan vaihtoehdon monenlaisille tiimeille ja työnteon tavoille.
Kokonaispinta-ala on 3 000 m² ja se sijaitsee viidennessä kerroksessa. Tila soveltuu noin 150–350 hengen organisaatiolle, joka arvostaa tilavuutta, muunneltavuutta ja moderneja työympäristöratkaisuja.
Porkkalankatu 20
Ruohiksen Korttelikeskus muodostaa Ruoholahden sydämeen urbaanin ja modernin kokonaisuuden, jossa työpäivä sujuu helposti ja palvelut ovat lähellä. Korttelin keskeinen rakennus, Porkkalankatu 20, tarjoaa laadukkaita ja muuntojoustavia tiloja yrityksille, jotka arvostavat näkyvyyttä, saavutettavuutta ja tehokasta arkea.
Sijainti – Ruoholahden parhaalla paikalla
Porkkalankatu 20 sijaitsee Ruoholahden paraatipaikalla, aivan Länsiväylän päässä ja erinomaisesti saavutettavissa kaikilla kulkumuodoilla. Metro-, bussi- ja raitiovaunuyhteydet ovat vain noin 200 metrin päässä, ja juna-asemalle on matkaa 1,6 kilometriä. Lentokentälle suuntaava työmatka onnistuu vaivattomasti 20 kilometrin etäisyydeltä.
Keskeinen sijainti Ruohiksen korttelikeskuksessa tuo arjen palvelut suoraan työpäivän yhteyteen: Citymarket, apteekki, Alko, Postin palvelut sekä Elixian kuntokeskus ovat muutaman askeleen päässä, samoin parkkihallin autopesula. Naapurikiinteistössä toimivan Terveystalon ja Ruoholahden terveysaseman ansiosta myös työterveyspalvelut löytyvät sujuvasti läheltä. Pyöräparkki, laaja pysäköintihalli sekä sähköautojen latausmahdollisuudet viimeistelevät arjen helppouden.
Palvelut – sujuvaa arkea ja työhyvinvointia tukevat ratkaisut
Ruoholahden alue tarjoaa runsaasti lounasravintoloita, kahviloita sekä kulttuuri- ja liikuntapalveluja, joita täydentävät Kaapelitehdas, Tanssin Talo ja Salmisaaren monipuolinen liikuntakeskus. Kiinteistö itsessään tarjoaa käyttäjilleen laajan palvelukokonaisuuden: aulapalvelut, kuntoilumahdollisuudet, neuvottelutilat, saunatilat, sosiaalitilat suihkuineen sekä wellness-palveluita, jotka lisäävät työpäivän hyvinvointia ja arjen laatua.
Päivittäinen työnteko helpottuu, kun rakennuksessa on myös päivittäistavarakauppa, ja pysäköinti hoituu kätevästi Ruoholahden parkkihallissa.
Vastuullisuus – sertifioitua laatua ja hiilineutraaleja ratkaisuja
Korttelikeskuksen kiinteistöillä on BREEAM In-Use Excellent ‑ympäristösertifiointi, joka todentaa kiinteistön korkeatasoisen vastuullisuuden ja energiatehokkuuden. Käytössä on kotimaisella tuulivoimalla tuotettua hiilineutraalia sähköä, mikä tukee yritysten omia vastuullisuustavoitteita ja pienentää hiilijalanjälkeä.
Ota yhteyttä
Kiinnostuitko? Ota yhteyttä ja tule tutustumaan!
Toimitilavälityspalvelumme on tilanhakijalle maksuton.
Kokonaispinta-ala on 3 000 m² ja se sijaitsee viidennessä kerroksessa. Tila soveltuu noin 150–350 hengen organisaatiolle, joka arvostaa tilavuutta, muunneltavuutta ja moderneja työympäristöratkaisuja.
Porkkalankatu 20
Ruohiksen Korttelikeskus muodostaa Ruoholahden sydämeen urbaanin ja modernin kokonaisuuden, jossa työpäivä sujuu helposti ja palvelut ovat lähellä. Korttelin keskeinen rakennus, Porkkalankatu 20, tarjoaa laadukkaita ja muuntojoustavia tiloja yrityksille, jotka arvostavat näkyvyyttä, saavutettavuutta ja tehokasta arkea.
Sijainti – Ruoholahden parhaalla paikalla
Porkkalankatu 20 sijaitsee Ruoholahden paraatipaikalla, aivan Länsiväylän päässä ja erinomaisesti saavutettavissa kaikilla kulkumuodoilla. Metro-, bussi- ja raitiovaunuyhteydet ovat vain noin 200 metrin päässä, ja juna-asemalle on matkaa 1,6 kilometriä. Lentokentälle suuntaava työmatka onnistuu vaivattomasti 20 kilometrin etäisyydeltä.
Keskeinen sijainti Ruohiksen korttelikeskuksessa tuo arjen palvelut suoraan työpäivän yhteyteen: Citymarket, apteekki, Alko, Postin palvelut sekä Elixian kuntokeskus ovat muutaman askeleen päässä, samoin parkkihallin autopesula. Naapurikiinteistössä toimivan Terveystalon ja Ruoholahden terveysaseman ansiosta myös työterveyspalvelut löytyvät sujuvasti läheltä. Pyöräparkki, laaja pysäköintihalli sekä sähköautojen latausmahdollisuudet viimeistelevät arjen helppouden.
Palvelut – sujuvaa arkea ja työhyvinvointia tukevat ratkaisut
Ruoholahden alue tarjoaa runsaasti lounasravintoloita, kahviloita sekä kulttuuri- ja liikuntapalveluja, joita täydentävät Kaapelitehdas, Tanssin Talo ja Salmisaaren monipuolinen liikuntakeskus. Kiinteistö itsessään tarjoaa käyttäjilleen laajan palvelukokonaisuuden: aulapalvelut, kuntoilumahdollisuudet, neuvottelutilat, saunatilat, sosiaalitilat suihkuineen sekä wellness-palveluita, jotka lisäävät työpäivän hyvinvointia ja arjen laatua.
Päivittäinen työnteko helpottuu, kun rakennuksessa on myös päivittäistavarakauppa, ja pysäköinti hoituu kätevästi Ruoholahden parkkihallissa.
Vastuullisuus – sertifioitua laatua ja hiilineutraaleja ratkaisuja
Korttelikeskuksen kiinteistöillä on BREEAM In-Use Excellent ‑ympäristösertifiointi, joka todentaa kiinteistön korkeatasoisen vastuullisuuden ja energiatehokkuuden. Käytössä on kotimaisella tuulivoimalla tuotettua hiilineutraalia sähköä, mikä tukee yritysten omia vastuullisuustavoitteita ja pienentää hiilijalanjälkeä.
Ota yhteyttä
Kiinnostuitko? Ota yhteyttä ja tule tutustumaan!
Toimitilavälityspalvelumme on tilanhakijalle maksuton.
Vapautuu
Kysy
Kerros
5
Ota yhteyttä
Logistila Oy
Kylätie 11-13, 00320 HELSINKI
Karoliina Turppo
Näytä puhelinnumero
050 345 3258
Pyydä lisätietoa
