Vuokrataan varastotilat - Lahti
KOY Kariston Talliosake 3 tila 2, Karistonkatu 6, 15150 Lahti #10858732
Vuokrattavana KOY Karistonkadun Talliosake 3 monikäyttöinen varasto, autotalli, harraste-, toimitila 2. Tilassa wc ja ilmalämpöpumppu.
Osoite
Karistonkatu 6, 15150 Lahti
Tilatyyppi
Varastotilaa
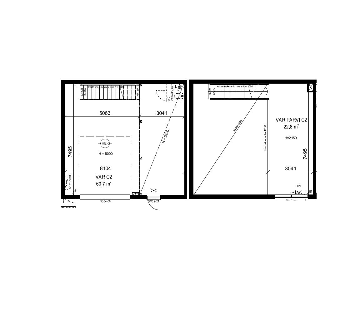
84 m2
Vuokra
1100 / kk
Kiinteistö
KOY Karistonkadun Talliosake 3
Sijainti
Karistonkadun Talliosake 3 sijaitsee Valtateiden E75 ja 12 liittymäalueella. Matkaa Lahden keskustan Matkakeskukseen 4 km, kauppakeskus Karismaan 2 km ja Eteläisen ohitustietä Launeelle 5 km. Sijainti ja tilat palvelevat niin kuluttaja- kuin yritysasiakkaita.
Muuta
Vuokrataan vain yritysasiakkaille – vuokraan lisätään ALV 25,5%.
Moottoroitu nosto-ovi erillisellä käyntiovella. Tilamitat: 7,49 (pituus) 5,06 (Leveys) 5,00 (Korkeus). Ovimitat: Ovimitat: 3,40 (Leveys) 3,90 (Korkeus).
Käyttötarkoitusesimerkkejä: - toimitila - varastotila - yrityksen työtarvikevarasto / kalustovarasto - kimppatalli - harrastetila - bändikämppä - autotalli - moottoripyörätalli - mönkijätalli. Tila ei sovellu autokorjaamoksi eikä autopesulaksi.
Tila on sähkölämmitteinen. Vuokralainen tekee tilaan oman sähkösopimuksen. Vesi- ja sähkömaksu kulutuksen mukaan. Vakuus kahden kuukauden vuokraa vastaava määrä. Haetaan pitkäaikaista vuokralaista. Luottotiedot tarkistetaan.
Talliosake tuottaa joustavasti muunneltavia hallitiloja ympäri Suomen, joita yritykset ja yksityishenkilöt käyttävät tukikohtinaan erilaisille toiminnoille: yritys- ja liiketoimintaan, varastointiin sekä harrastuksiin.
Moottoroitu nosto-ovi erillisellä käyntiovella. Tilamitat: 7,49 (pituus) 5,06 (Leveys) 5,00 (Korkeus). Ovimitat: Ovimitat: 3,40 (Leveys) 3,90 (Korkeus).
Käyttötarkoitusesimerkkejä: - toimitila - varastotila - yrityksen työtarvikevarasto / kalustovarasto - kimppatalli - harrastetila - bändikämppä - autotalli - moottoripyörätalli - mönkijätalli. Tila ei sovellu autokorjaamoksi eikä autopesulaksi.
Tila on sähkölämmitteinen. Vuokralainen tekee tilaan oman sähkösopimuksen. Vesi- ja sähkömaksu kulutuksen mukaan. Vakuus kahden kuukauden vuokraa vastaava määrä. Haetaan pitkäaikaista vuokralaista. Luottotiedot tarkistetaan.
Talliosake tuottaa joustavasti muunneltavia hallitiloja ympäri Suomen, joita yritykset ja yksityishenkilöt käyttävät tukikohtinaan erilaisille toiminnoille: yritys- ja liiketoimintaan, varastointiin sekä harrastuksiin.
Vapautuu
Heti vapaa
Katutasossa
Ota yhteyttä
Talliosake Oy
Jaakko Laitinen
Aluemyyntipäällikkö Itä- ja Keski – Suomi, Päijät-Häme
Näytä puhelinnumero
040 903 0706
Pyydä lisätietoa
