Vuokrataan toimistotilat - Helsinki
Siltasaarenkatu 8-10, Hakaniemi, 00530 Helsinki #10858581
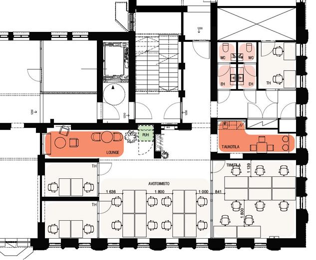
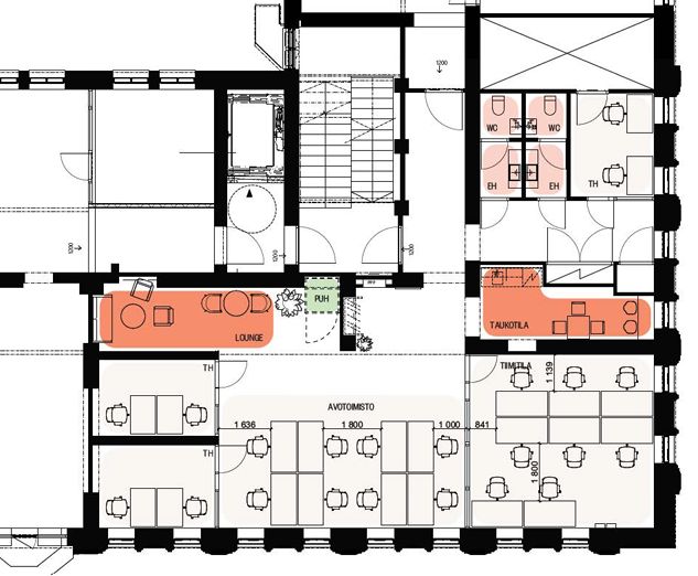
Siltasaari 10 - Toimisto 178 m²
Osoite
Siltasaarenkatu 8-10, 00530 Helsinki
Tilatyyppi
Toimistotilaa
178 m2
Pohjapiirros
Kiinteistö
Remontoitu ja täysin muuttovalmis kulmatoimisto viidennessä kerroksessa tarjoaa valoisat ja tehokkaat puitteet 6–14 hengen tiimille. Tila on viimeistelty moderniin käyttökuntoon, ja sen lisäksi vuokralaisella on mahdollisuus hyödyntää kiinteistön toisen kerroksen laadukkaita neuvotteluhuoneita ja projektitiloja tarpeen mukaan.
Valmis 178 m²:n kokonaisuus tarjoaa modernin ja toimivan työympäristön, jossa on avotilaa, tiimitilat ja kaksi erillistä työhuonetta. Tilasta löytyy myös lounge, keittiö sekä kaksi WC:tä. Lisäksi erillinen hiljainen työtila mahdollistaa keskittyneen työskentelyn silloin, kun sitä tarvitaan.
Siltasaari 10
Siltasaari 10 Hakaniemessä on paikka, jossa työ, kaupunki ja kulttuuri kohtaavat inspiroivalla tavalla. Yrityksille tarjoutuu moderni, viihtyisä ja joustava työympäristö, joka rakentuu klassisen kaupunkimiljöön keskelle. Alkuperäinen Elannon tavaratalorakennus vuodelta 1913 on peruskorjattu nykyiseksi Siltasaari 10 -toimisto- ja liiketilakokonaisuudeksi.
Sijainti
Siltasaari 10:n sijainti Hakaniemen ytimessä tekee arjesta sujuvaa. Historialliset maamerkit, Hakaniemen tori ja kauppahalli tuovat alueelle vahvan kaupunkimaisen identiteetin. Niiden rinnalle rakennetut modernit palvelut, ravintolat ja toimitilat täydentävät ympäristöä ja muodostavat toimivan, nykyaikaisen kokonaisuuden.
Erinomaiset liikenneyhteydet takaavat saavutettavuuden:
Metro: 100 m
Raitiovaunu: alle 100 m
Bussi: alle 100 m
Juna: 1,3 km
Lentokenttä: 18 km
Palvelut
Siltasaari 10 tarjoaa laajan ja korkeatasoisen palvelukokonaisuuden, joka luo sujuvan ja viihtyisän arjen yrityksille ja työntekijöille.
Kattava palveluvalikoima:
Laadukas ravintolakeskittymä
Aulapalvelut
Monipuoliset neuvottelu-, tapahtuma- ja projektitilat
Päivittäistavarakauppa, liiketilat ja kahvilat katutasossa
Auditorio / tapahtumatilat
Parkkihalli ja 400-paikkainen pyöräparkki
Sähköautojen ja sähköpyörien latauspisteet
Sosiaalitilat suihkuineen
Vastuullisuus
Siltasaari 10 on peruskorjattu moderniksi, ympäristöä ja rakennuksen historiaa kunnioittavaksi toimitilaksi. Kiinteistö hyödyntää energiatehokkaita ratkaisuja, kuten kotimaista tuulisähköä, oman aurinkovoimalan tuottamaa energiaa ja hiilineutraalia kiertolämpöä. Digitalisoitu lämmityksenohjaus ja ilmanvaihto varmistavat vähäisen energiankulutuksen ja laadukkaan sisäilman, minkä ansiosta rakennus on saavuttanut LEED Platinum -sertifikaatin.
Käyttäjien hyvinvointi on suunnittelun keskiössä. Siltasaari 10:llä on WELL Gold -hyvinvointisertifikaatti, joka osoittaa terveelliset ja viihtyisät työolosuhteet. Pyöräilijöitä tukevat laaja pyörähalli, huoltoasema ja modernit sosiaalitilat, jotka tekevät työmatkaliikkumisesta sujuvaa ja arjesta toimivaa.
Ota yhteyttä
Kiinnostuitko? Ota yhteyttä ja tule tutustumaan!
Toimitilavälityspalvelumme on tilanhakijalle maksuton.
Valmis 178 m²:n kokonaisuus tarjoaa modernin ja toimivan työympäristön, jossa on avotilaa, tiimitilat ja kaksi erillistä työhuonetta. Tilasta löytyy myös lounge, keittiö sekä kaksi WC:tä. Lisäksi erillinen hiljainen työtila mahdollistaa keskittyneen työskentelyn silloin, kun sitä tarvitaan.
Siltasaari 10
Siltasaari 10 Hakaniemessä on paikka, jossa työ, kaupunki ja kulttuuri kohtaavat inspiroivalla tavalla. Yrityksille tarjoutuu moderni, viihtyisä ja joustava työympäristö, joka rakentuu klassisen kaupunkimiljöön keskelle. Alkuperäinen Elannon tavaratalorakennus vuodelta 1913 on peruskorjattu nykyiseksi Siltasaari 10 -toimisto- ja liiketilakokonaisuudeksi.
Sijainti
Siltasaari 10:n sijainti Hakaniemen ytimessä tekee arjesta sujuvaa. Historialliset maamerkit, Hakaniemen tori ja kauppahalli tuovat alueelle vahvan kaupunkimaisen identiteetin. Niiden rinnalle rakennetut modernit palvelut, ravintolat ja toimitilat täydentävät ympäristöä ja muodostavat toimivan, nykyaikaisen kokonaisuuden.
Erinomaiset liikenneyhteydet takaavat saavutettavuuden:
Metro: 100 m
Raitiovaunu: alle 100 m
Bussi: alle 100 m
Juna: 1,3 km
Lentokenttä: 18 km
Palvelut
Siltasaari 10 tarjoaa laajan ja korkeatasoisen palvelukokonaisuuden, joka luo sujuvan ja viihtyisän arjen yrityksille ja työntekijöille.
Kattava palveluvalikoima:
Laadukas ravintolakeskittymä
Aulapalvelut
Monipuoliset neuvottelu-, tapahtuma- ja projektitilat
Päivittäistavarakauppa, liiketilat ja kahvilat katutasossa
Auditorio / tapahtumatilat
Parkkihalli ja 400-paikkainen pyöräparkki
Sähköautojen ja sähköpyörien latauspisteet
Sosiaalitilat suihkuineen
Vastuullisuus
Siltasaari 10 on peruskorjattu moderniksi, ympäristöä ja rakennuksen historiaa kunnioittavaksi toimitilaksi. Kiinteistö hyödyntää energiatehokkaita ratkaisuja, kuten kotimaista tuulisähköä, oman aurinkovoimalan tuottamaa energiaa ja hiilineutraalia kiertolämpöä. Digitalisoitu lämmityksenohjaus ja ilmanvaihto varmistavat vähäisen energiankulutuksen ja laadukkaan sisäilman, minkä ansiosta rakennus on saavuttanut LEED Platinum -sertifikaatin.
Käyttäjien hyvinvointi on suunnittelun keskiössä. Siltasaari 10:llä on WELL Gold -hyvinvointisertifikaatti, joka osoittaa terveelliset ja viihtyisät työolosuhteet. Pyöräilijöitä tukevat laaja pyörähalli, huoltoasema ja modernit sosiaalitilat, jotka tekevät työmatkaliikkumisesta sujuvaa ja arjesta toimivaa.
Ota yhteyttä
Kiinnostuitko? Ota yhteyttä ja tule tutustumaan!
Toimitilavälityspalvelumme on tilanhakijalle maksuton.
Vapautuu
Kysy
Kerros
5
Liitetiedostot
Ota yhteyttä
Logistila Oy
Kylätie 11-13, 00320 HELSINKI
Karoliina Turppo
Näytä puhelinnumero
050 345 3258
Pyydä lisätietoa
