Vuokrataan liiketilat - Helsinki
Vanha talvitie 7, Kalasatama, 00580 Helsinki #10858553
Vuokrataan täysin uusi katutason liiketila Kalasataman sydämessä.
Osoite
Vanha talvitie 7, 00580 Helsinki
Tilatyyppi
Liiketilaa
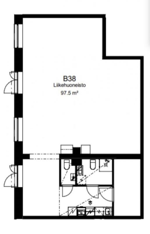
97,5 m2
Pohjapiirros
Tila soveltuu
Parturi- ja kampaamo
Kiinteistö
Vanhan Talvitien varressa sijaitseva, katutason täysin uusi toimisto/liiketila. Tilaan on kaksi sisäänkäyntiä kadulta. Tila jakautuu kahteen osaan josta liiketila on avaraa, valoisaa ja korkeaa tilaa sekä takaosaan jossa on 2 kpl vessoja joista toisessa on myös suihku ja pesukoneelle paikka.
Vessoja vastapäätä on täysin uusi keittiö jossa on uudet kodinkoneet sekä erillinen varastohuone.
Tila ei sovellu ravintolaksi, kahvilaksi tai baariksi.
Vuokra 1950€/kk+alv
Vessoja vastapäätä on täysin uusi keittiö jossa on uudet kodinkoneet sekä erillinen varastohuone.
Tila ei sovellu ravintolaksi, kahvilaksi tai baariksi.
Vuokra 1950€/kk+alv
Sijainti
Kiinteistö sijaitsee erinomaisien kulkuyhteyksien äärellä rakentuvassa Kalasatamassa, aivan kauppakeskus Redin läheisyydessä sekä Kultuurikeskus Teurastamoa vastapäätä.
Pysäköinti
Kadunvarsipysäköinti. Kauppakeskus Redissä 2 h ilmainen pysäköinti. Taloyhtiön parkkihallista on mahdollista vuokrata myös oma autopaikkoja taloyhtiöltä.
Palvelut
Kadun toisella puolella Teurastamo kaikkineen palveluineen ja ravintoloineen. LIDL-kauppa aivan vieressä. Kauppakeskus Redi muutaman minuutin kävelymatkan päässä.
Kulkuyhteydet
Bussi 50 m
Metro 100 m
Tuleva raitiolinja Kalasataman ja Pasilan välille
Metro 100 m
Tuleva raitiolinja Kalasataman ja Pasilan välille
Vapautuu
Heti
Energiatehokkuusluokka
A2018
Katutasossa
Näkyvällä paikalla
Ota yhteyttä
Comreal Oy LKV
Joonas Nilsson
Näytä puhelinnumero
044 328 3425
Läkkisepänkuja 6, 00620 Helsinki
Comreal on valtakunnallinen, asiantunteva ja aktiivinen kiinteistöalan kumppani, joka palvelee sekä kiinteistönomistajia että toimitilojen käyttäjiä. Toimintamme ydin on yksinkertainen: tarjota erinomaista palvelua kaikille.
Pyydä lisätietoa
