Vuokrataan liiketilat - Jyväskylä
Itä-Päijänteentie 45, Seppälä, 40320 Jyväskylä #10858379
Erittäin näkyvältä sijainnilta kaupallinen liiketila vuokrattavana
Osoite
Itä-Päijänteentie 45, 40320 Jyväskylä
Tilatyyppi
Liiketilaa
1300 m2
Muuta
Vuokrataan erinomaiselta ja näkyvältä sijainnilta autokauppana toiminutta myymälä, toimisto, ja varastotilaa.
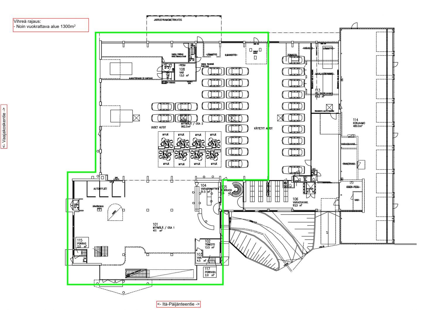
Pohjakuvaan on rajattu vihreällä noin 1300m2 alue johon haetaan uutta toimijaa. Aikataulusta voidaan sopia uuden toimijan kanssa yhteistyössä.
Tilat ovat siisti, avarat ja monipuoliset, tilaan on useampi nosto-ovi, kellaritilojen ansiosta myös viemäröintejä voidaan lisätä tarvittaessa.
Pihassa autopaikkoja noin 60kpl henkilökunnan ja asiakkaiden käyttöön. Piha on aidattu ja varustettu kahdella portilla.
Kiinteistöllä olemassa oleva korkea pyloni Seppäläntien suuntaan.
Lisäksi kiinteistön toisessa kerroksessa toimistotilaa joko yhteisesti tai huone -kerrallaan vuokrattavaksi.
Ota yhteyttä näyttöä ja lisätietoja varten
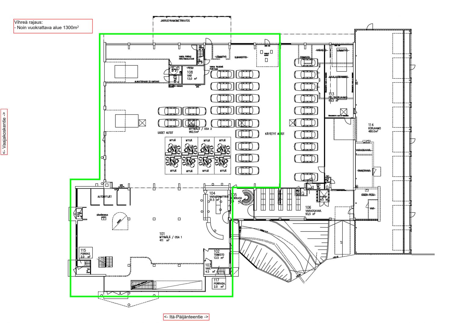
Pohjakuvaan on rajattu vihreällä noin 1300m2 alue johon haetaan uutta toimijaa. Aikataulusta voidaan sopia uuden toimijan kanssa yhteistyössä.
Tilat ovat siisti, avarat ja monipuoliset, tilaan on useampi nosto-ovi, kellaritilojen ansiosta myös viemäröintejä voidaan lisätä tarvittaessa.
Pihassa autopaikkoja noin 60kpl henkilökunnan ja asiakkaiden käyttöön. Piha on aidattu ja varustettu kahdella portilla.
Kiinteistöllä olemassa oleva korkea pyloni Seppäläntien suuntaan.
Lisäksi kiinteistön toisessa kerroksessa toimistotilaa joko yhteisesti tai huone -kerrallaan vuokrattavaksi.
Ota yhteyttä näyttöä ja lisätietoja varten
Vapautuu
Kysy
Kerros
1
Ota yhteyttä
Infonia Oy
Kauppakatu 18 A, 40100 Jyväskylä
Näytä puhelinnumero
+358 407579731
Mikko Hirvi
Näytä puhelinnumero
+358 407579731
Pyydä lisätietoa
