Vuokrataan tuotantotilat - Pirkkala
Jasperintie 310, Vähä-Vaitti, 33960 Pirkkala #10858374
Myymälä-/varasto-/tuotantotilaa näkyvältä paikalta Pirkkalasta.
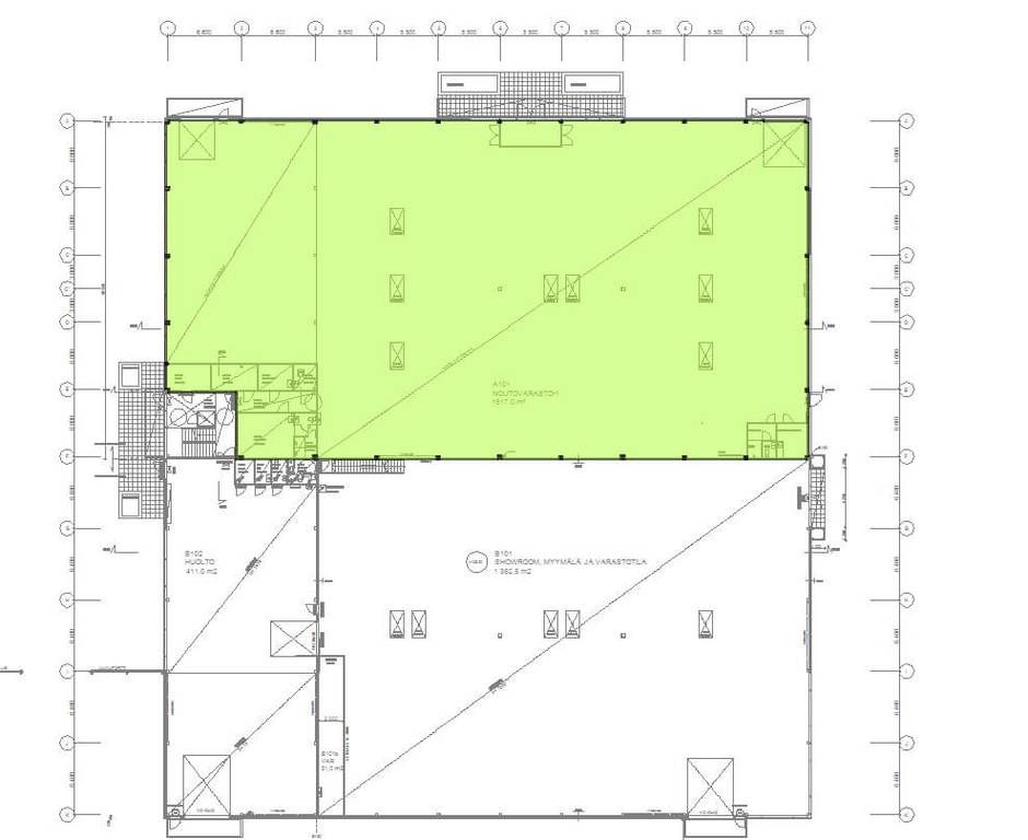
Tämä 2078 m² tilakokonaisuus jakautuu kiinteistön 1. ja 2. kerrokseen. Tila soveltuu hyvin esim. teknisen erikoiskaupan käyttöön. Siistiä uudehkoa tilaa. Tilan korkeus 7 m, kaksi nosto-ovea. Vapautuminen syksyllä 2026.
Jasperintie 310 sijaitsee lähellä valtatie 3:sta. Kiinteistö on rakennettu vuonna 2014. Alueen palvelut ovat helposti saavutettavissa. Viereisessä rakennuksessa on monipuolinen lounasravintola.
Kysy lisää numerosta 044 723 4700 tai info@bref.fi. Palvelumme on tilanhakijoille ilmainen.
Bureau Real Estate Finland Oy
Lars Sonckin kaari 16, 02600 Espoo
Näytä puhelinnumero
0447234700
Bureau Real Estate Finland Oy
https://www.bref.fi