Vuokrataan työtilat - Vantaa
Linjatie 5, Kolohonka, 01260 Vantaa #10858343
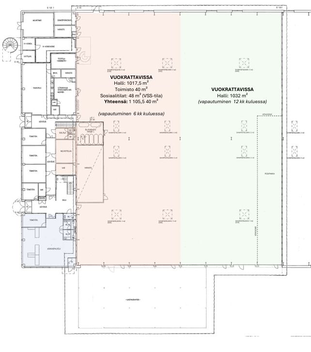
Nyt vuokrattavissa varasto ja tuotantotilaa. TIlasta löytyy siltanosturi, kaksi nosto-ovea ja toisesta hallista löytyy pari linjakaivoa. Tila vuokataan viereisten toimistotilojen yhteydessä. Lisäksi kiinteistöltä on mahdollista vuokrata piha-aluetta jopa 1700m2 asti.
Linjatie 5 sijaitsee Vantaan Kolohankan teollisuusalueella. Kohde on melko lähellä Lahdenväylän ramppeja ja noin 7 km päässä Kehä III:sta, joten kiinteistöltä pääset nopeasti suurille väylöille. Julkisten kulkuyhteyksien osalta osoitteeseen pääsee bussilla ja lähimmät pysäkit ovat 3-5minuutin kävelymatkan päässä. Lähiympäristö koostuu pääosin teollisuus- ja toimitilarakennuksia, joten sijainti soveltuukin erityisesti yrityksille tai tuotantotoiminnalle.
Me Croisettella autamme teitä löytämään teille parhaat tilat! Olemme puolueettomia asiantuntijoita ja tunnemme toimitilamarkkinat, talot sekä tilat vankalla kokemuksella. Meillä on välityksessä kaikki toimitilat ja tiedämme niiden alustavat vuokratasot.
Tehtävämme on tehdä toimitilahaustanne onnistunutta ja helppoa. Saamme palkkiomme kiinteistönomistajalta, joten sinulle palvelumme on täysin maksuton. Jos kiinnostuit, ota yhteyttä!
Siltanosturi
Croisette Real Estate Partner
Erottajankatu 5 A 6, 00130 Helsinki
Näytä puhelinnumero
+358 400 585 857
Croisette Vuokraus
Näytä puhelinnumero
+358400585857
