Vuokrataan toimistotilat - Helsinki
Sörnäistenkatu 1, Sörnäinen, 00580 Helsinki #10858333
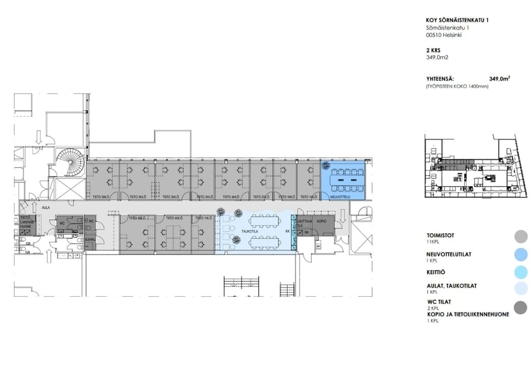
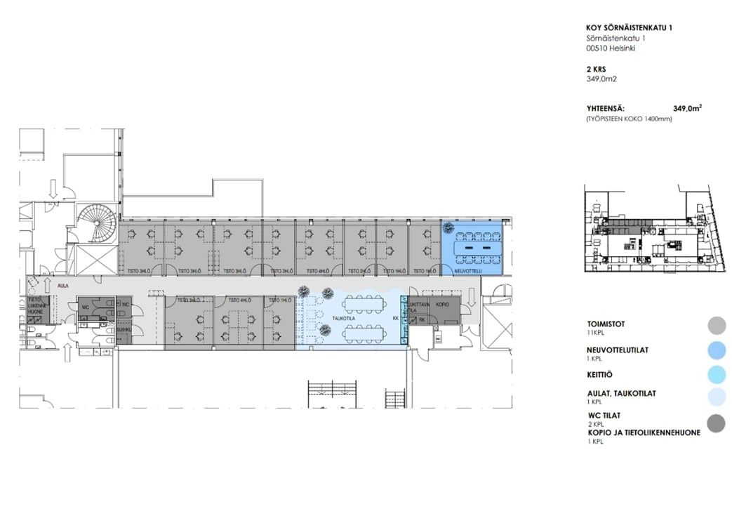
Sörnäistenkatu 1 sijaitsee trendikkäällä alueella, joka kehittyy ja kasvaa koko ajan. Toimistotilat ovat muokattavissa, ja niitä voidaan uudistaa tarpeiden mukaan. Kiinteistöstä on mahdollista saada pieniä alle 100 m2:n tiloja aina suuriin, jopa 3 000 neliön toimitiloihin saakka.
Valoisassa ja avarassa rakennuksessa on atriumpiha ja upeat näkymät, sillä ikkunat ulottuvat lattiasta kattoon asti. Kiinteistön palveluihin kuuluu muun muassa aulavastaanotto, lounasravintola, kuntosali sekä kattavat kokoustilat.
Me Croisettella autamme teitä löytämään teille parhaat tilat! Olemme puolueettomia asiantuntijoita ja tunnemme toimitilamarkkinat, talot sekä tilat vankalla kokemuksella. Meillä on välityksessä kaikki toimitilat ja tiedämme niiden alustavat vuokratasot.
Tehtävämme on tehdä toimitilahaustanne onnistunut ja helppo. Saamme palkkiomme kiinteistönomistajalta, joten sinulle palvelumme on täysin maksuton.
Croisette Real Estate Partner
Erottajankatu 5 A 6, 00130 Helsinki
Näytä puhelinnumero
+358 400 585 857
Croisette Vuokraus
Näytä puhelinnumero
+358400585857
