Vuokrataan toimistotilat - Oulu
Teknologiantie 5, Linnanmaa, 90590 Oulu #10858271
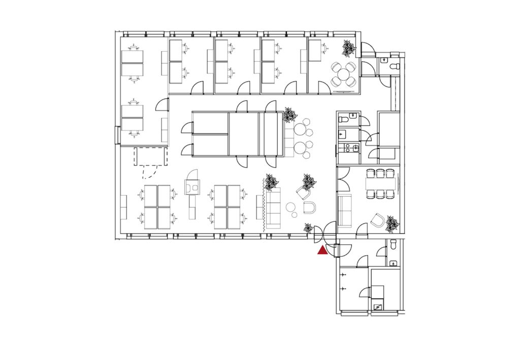
Vuokrattavana toimistotilaa Oulun Linnanmaassa.
Tämä 264,5 m² toimisto sijaitsee kiinteistön 1. kerroksessa. Tilassa on erillisiä työ- ja neuvotteluhuoneita, avotilaa, keittiö, oma sauna sosiaalitiloineen sekä wc:t. Ilmoitettu neliömäärä sisältää jyvityksen kiinteistön yhteisistä tiloista.
Technopolis Linnanmaa on yksi Euroopan merkittävimmistä ICT-teknologian kehityskeskuksista. Technopoliksella on Linnanmaan alueella 30 kiinteistöä ja satoja yrityksiä vuokralaisena. Kampus tarjoaa kattavan palveluvalikoiman sekä tapahtumia, joissa yritykset pääsevät verkostoitumaan. Ainutlaatuinen palvelukonsepti sekä viihtyisät toimitilat takaavat erinomaisen ympäristön sekä pienille että suurille yrityksille.
Kysy lisää numerosta 044 723 4700 tai info@bref.fi. Palvelumme on tilanhakijoille ilmainen.
Bureau Real Estate Finland Oy
Lars Sonckin kaari 16, 02600 Espoo
Näytä puhelinnumero
0447234700
Bureau Real Estate Finland Oy
https://www.bref.fi