Vuokrataan liiketilat - Helsinki
Mannerheimintie 12, Keskusta, 00100 Helsinki #10858266
Katutason liiketilaa erinomaisella sijainnilla Helsingin keskustassa.
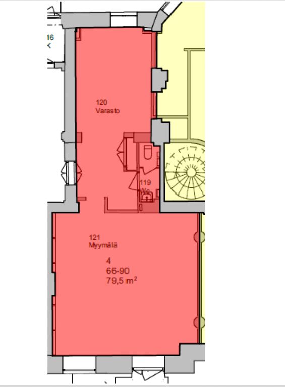
Tämä 79,5 m² liiketila sijaitsee kiinteistön kivijalassa. Tila on avonainen, ja siihen on oma sisäänkäynti suoraan kadulta. Tilaan kuuluu avaran myymälätilan lisäksi takaosan varastotilaa ja oma wc-tila. Vapautuminen 31.10.2026 tai sopimuksen mukaan. Ei sovellu ravintola-, kahvila- tai parturikampaamotoimintaan. This premise is not suitable for a restaurant, cafeteria or a barber shop.
Mannerheimintie 12 eli Luna House sijaitsee näkyvällä paikalla Helsingin ydinkeskustassa, Stockmannia vastapäätä. Alueella on runsaasti erilaisia liikkeitä ja ravintoloita, mikä takaa vilkkaat asiakasvirrat. Helsingin päärautatieasema sijaitsee lyhyen kävelymatkan päässä.
Kysy lisää numerosta 044 723 4700 tai info@bref.fi. Palvelumme on tilanhakijoille ilmainen.
Hissi
Bureau Real Estate Finland Oy
Lars Sonckin kaari 16, 02600 Espoo
Näytä puhelinnumero
0447234700
Bureau Real Estate Finland Oy
https://www.bref.fi