Vuokrataan toimistotilat, liiketilat - Tampere
Kullervonkatu 7, Tammela, 33100 Tampere #10858239
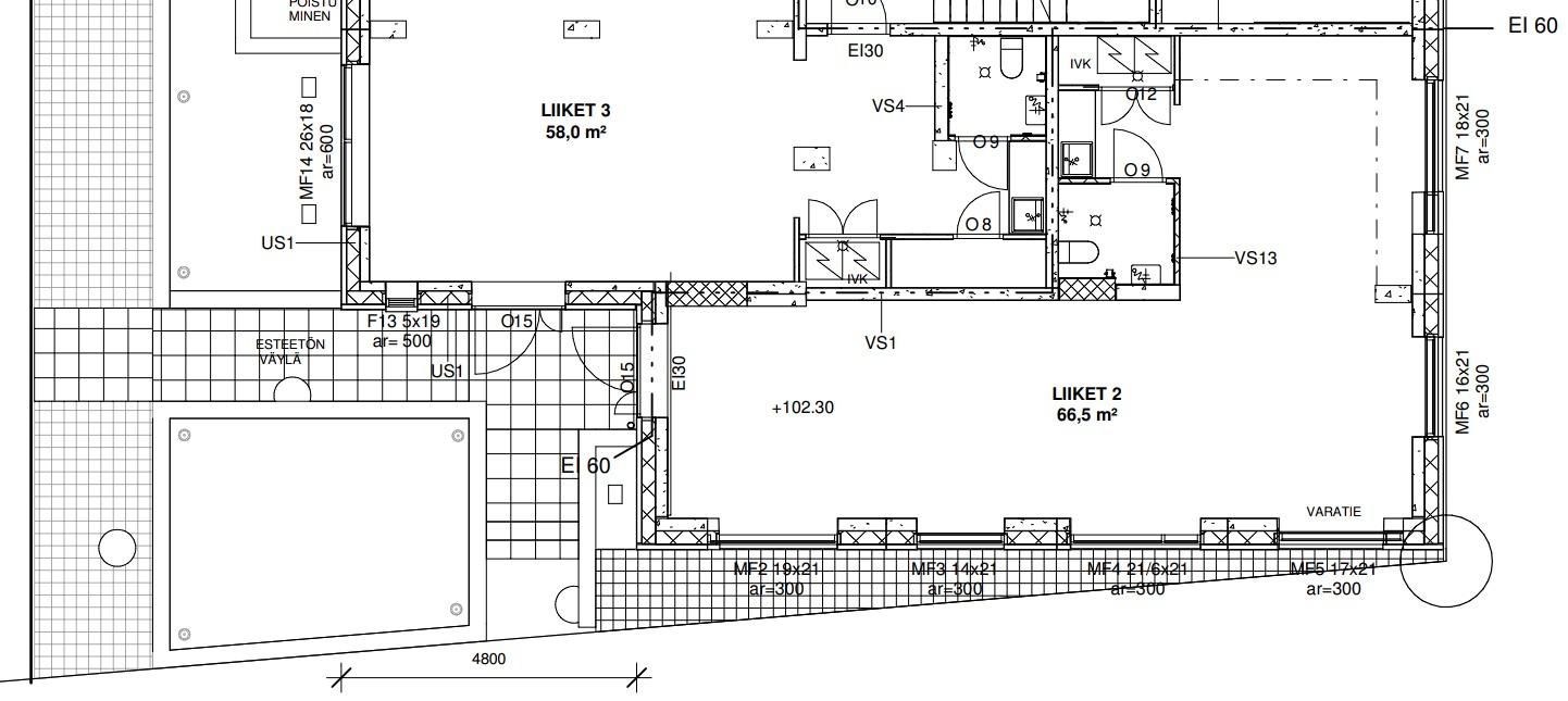
Vuokrattavana modernin asuintalon katutasossa sijaitseva ilmastoitu 66,5 m² liiketila (LT2). Liikehuoneistossa on keittiö- ja wc-tilat. Tila ei sovellu ravintolakäyttöön.
Kohde sijaitsee loistavalla paikalla kävelymatkan päässä keskustasta. Lisäksi läheltä löytyy paljon erilaisia palveluita ja lounasravintoloita.
Kysy lisätietoja tai sovitaan käynti kohteelle!
Osoite
Kullervonkatu 7, 33100 Tampere
Tilatyyppi
Toimistotilaa
66 m2
Liiketilaa
66 m2
Yhteensä
66 m2
Kiinteistö
Tampereen Tammelan Kustaa
Vapautuu
Kysy
Rakennusvuosi
2021
Katutasossa
Näkyvällä paikalla
Ota yhteyttä
Hausala Oy
Erkkilänkatu 11, 33100 Tampere
Näytä puhelinnumero
050 472 7077
Mika Savikko
Näytä puhelinnumero
050 472 7077
Mikko Ranta
Näytä puhelinnumero
050 360 6500
Pyydä lisätietoa
