Vuokrataan toimistotilat - Espoo
Vanha Maantie 1, Espoo, Suomi, Leppävaara, 02650 Espoo #10858222
Sointu on näkyvä toimistokohde Leppävaaran juna-aseman ja kauppakeskus Sellon välittömässä läheisyydessä. Tämä viisikerroksinen toimistorakennus tarjoaa modernisoituja ilmastoinnilla varustettuja toimistotiloja ja liiketilaa katutasossa. Kysy vuokrattavia tiloja!
Osoite
Vanha Maantie 1, Espoo, Suomi, 02650 Espoo
Tilatyyppi
Toimistotilaa
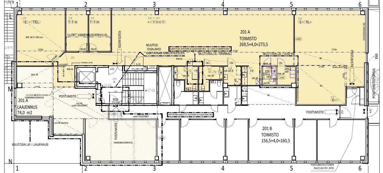
347 m2
Kiinteistö
Sointu
Ympäristö
Juna-asema: 500 m, Bussipysäkki: 200 m, Lentoasema: 19,3 km
Pysäköinti
Saatavilla
Kulkuyhteydet
Valokuitu
Muuta
Siisti huonetoimistotila Soinnun B-talossa, josta näkymät avautuvat etelään kauppakeskus Sellon suuntaan sekä puistoon pohjoisen suuntaan.
Soveltuu hyvin esim. väistötilaksi; tilaan tehtävä vuokrasopimus voi olla voimassa toistaiseksi 3 kk:n irtisanomisajalla. Tilaan ei tehdä muutostöitä. Edullinen vuokra, kysy lisää!
Sointu on näkyvä toimistokohde Leppävaaran juna-aseman ja kauppakeskus Sellon välittömässä läheisyydessä. Tämä viisikerroksinen toimistorakennus tarjoaa modernisoituja ilmastoinnilla varustettuja toimistotiloja ja liiketilaa katutasossa. Kysy vuokrattavia tiloja!
Soveltuu hyvin esim. väistötilaksi; tilaan tehtävä vuokrasopimus voi olla voimassa toistaiseksi 3 kk:n irtisanomisajalla. Tilaan ei tehdä muutostöitä. Edullinen vuokra, kysy lisää!
Sointu on näkyvä toimistokohde Leppävaaran juna-aseman ja kauppakeskus Sellon välittömässä läheisyydessä. Tämä viisikerroksinen toimistorakennus tarjoaa modernisoituja ilmastoinnilla varustettuja toimistotiloja ja liiketilaa katutasossa. Kysy vuokrattavia tiloja!
Vapautuu
Kysy
Rakennusvuosi
1991
Kerros
2
Energiatehokkuusluokka
C2018
Ota yhteyttä
LähiTapiola Kiinteistövarainhoito Oy
Heli Jalonen
Vuokrauspäällikkö
Näytä puhelinnumero
040 823 3490
Pyydä lisätietoa
