Vuokrataan liiketilat - Espoo
Länsituuli 1, Espoo, Suomi, Tapiola, 02100 Espoo #10858221
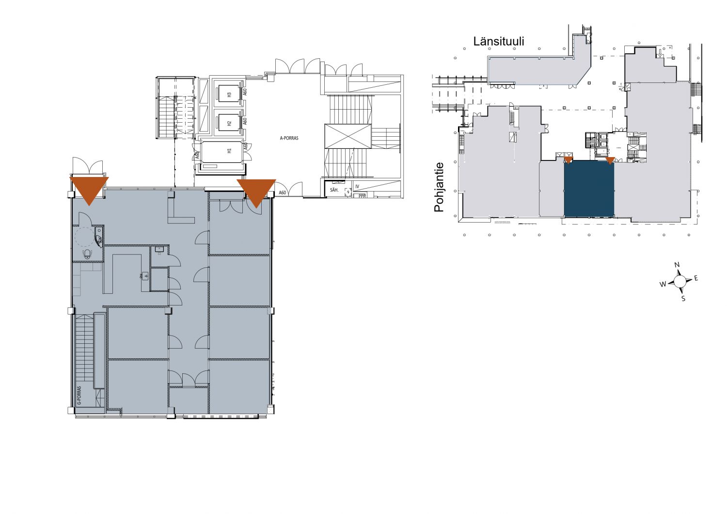
Länsikulma on Espoon Tapiolassa sijaitseva terveys- ja hyvinvointipalveluiden ”hyvän tuulen” talo.
Osoite
Länsituuli 1, Espoo, Suomi, 02100 Espoo
Tilatyyppi
Liiketilaa
233 m2
Kiinteistö
Tapiolan Länsikulma
Ympäristö
Bussipysäkki: 50 m, Metroasema: 50 m, Juna-asema: 6,5 km, Lentoasema: 26 km
Pysäköinti
Saatavilla
Muuta
Vuokrataan toistaiseksi voimassaolevalla sopimuksella ihana liiketila Länsikulman Hyvän tuulen talosta. Vapautuu toukokuussa 2026.
Länsikulma on Espoon Tapiolassa sijaitseva terveys- ja hyvinvointipalveluiden ”hyvän tuulen” talo.
Länsikulma on Espoon Tapiolassa sijaitseva terveys- ja hyvinvointipalveluiden ”hyvän tuulen” talo.
Vapautuu
Kysy
Rakennusvuosi
1985
Kerros
1
Energiatehokkuusluokka
C2018
Ota yhteyttä
LähiTapiola Kiinteistövarainhoito Oy
Heli Jalonen
Vuokrauspäällikkö
Näytä puhelinnumero
040 823 3490
Pyydä lisätietoa
