Vuokrataan tuotantotilat - Helsinki
Hankasuontie 9, Konala, 00390 Helsinki #10858169
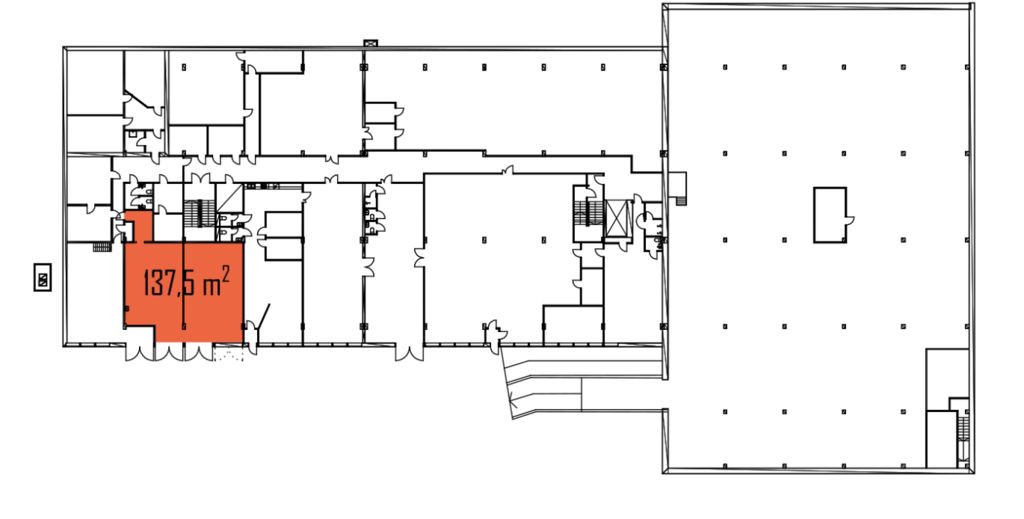
Tuotanto-/varastotilaa Helsingin Konalassa.
Vuokrataan 137,5 m² katutason varasto-/tuotantotila, joka koostuu kahdesta vierekkäisestä varastosta sekä pienestä toimistohuoneesta. Tilojen välillä pääsee kulkemaan myös sisäkautta. Kumpaankin tilaan oma pariovi suoraan pihalta. Ei sovellu autopesu- tai korjaamotoimintaan.
Pienteollisuustoimintaan sopiva kiinteistö on rakennettu vuonna 1969 ja peruskorjattu vuosien 2009-2010 aikana. Rakennuksessa on varasto-, tuotanto- ja toimistotiloja kahdessa kerroksessa, koulutustiloja ja matalaa varastotilaa kellarikerroksessa. Kiinteistössä on lastauslaituri ja tavarahissi, jonka kantavuus on 3500kg.
Kysy lisää numerosta 044 723 4700 tai info@bref.fi. Palvelumme on tilanhakijoille ilmainen.
Bureau Real Estate Finland Oy
Lars Sonckin kaari 16, 02600 Espoo
Näytä puhelinnumero
0447234700
Bureau Real Estate Finland Oy
https://www.bref.fi