Vuokrataan toimistotilat - Espoo
Vänrikinkuja 3, Leppävaara, 02600 Espoo #10858163
Siistiä toimistotilaa Polaris Business Parkissa, Espoon Leppävaarassa.
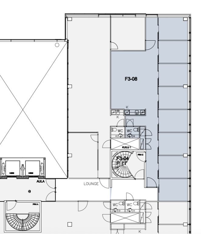
Tämä 161 m² toimistotila sijaitsee Capella-talon 3. kerroksessa. Tilassa on työhuoneita, neuvotteluhuone sekä keittiö ja wc. Toimiston omat neliöt 141 m² + jyvitetty osuus kerrosauloista 20 m². Vapautuminen heinäkuussa 2026. Kuvat ovat yleiskuvia kiinteistön tiloista.
Polaris Business Park sijaitsee Perkkaalla, Turunväylän varrella, Leppävaaran välittömässä läheisyydessä. Se koostuu kolmesta toimistotalosta, jotka ovat kytketty toisiinsa. Kiinteistöjen tilat ovat nykyaikaisia ja viihtyisiä. Lisäksi ne tarjoavat vuokralaisilleen myös monipuoliset palvelut liiketoiminnan tueksi.
Kysy lisää numerosta 044 723 4700 tai info@bref.fi. Palvelumme on tilanhakijoille ilmainen.
Hissi
Bureau Real Estate Finland Oy
Lars Sonckin kaari 16, 02600 Espoo
Näytä puhelinnumero
0447234700
Bureau Real Estate Finland Oy
https://www.bref.fi