Vuokrataan liiketilat - Tampere
Nuutisarankatu 35, 33900 Tampere #10858147
Vuokrattavissa avara ja valoisa katutason toimitilakokonaisuus Tampereen Sarankulman teollisuus- ja liikealueella, Läntisen kehätien varrella.
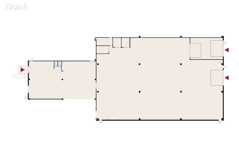
Kiinteistössä on mahdollista yhdistää kaksi erillistilaa yhdeksi kokonaisuudeksi pohjakuvassa esitetyllä tavalla, jolloin yhdistetty tila mahdollistaa hyvin monipuoliset toiminnot yhdessä kerroksessa ja tilassa. Yhdistetty toimitila soveltuu niin varasto- ja tuotantotilaksi kuin liiketilaksi ja toimistoksi. Tilojen vapaa korkeus on varasto-/tuotantotilan puolella 7 m ja liike-/toimisto-/huoltotilan puolella 5 m.
Varasto-osaan johtaa kaksi korkeaa nosto-ovea talon takapihalta.
Vuokraan lisätään alv + kulut.
Ota yhteyttä ja kysy lisää!
www.blanctoimitilat.fi
Masa Hakala
masa.hakala@blanckiinteisto.com
+358 40 964 2482
