Vuokrataan liiketilat - Helsinki
Mannerheimintie 105, Ruskeasuo, 00280 Helsinki #10858141
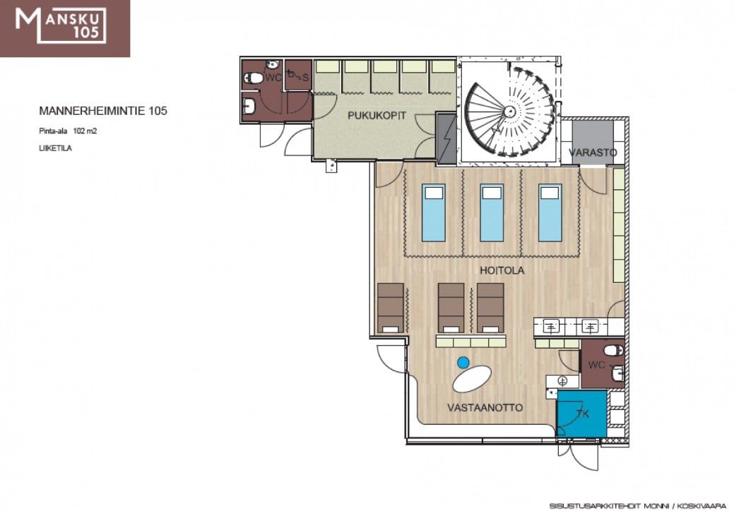
Tämä kompakti liiketila taipuu moneen, ja soveltuu esimerkiksi hyvinvointi- tai kauneudenhoitopalvelujen tarjoamiseen. Tilaan kuuluu vastaanottoaula, omat wc-tilat sekä asiakas-wc, avointa tilaa sekä takahuone a pieni varasto. Tila kannattaa kokea paikan päällä, jotta oma toiminta on helpompi visualisoida tänne! Tähän tilaan on oma sisäänkäynti Mannerheimintieltä.
Mannerheimintie 105 toimistokiinteistö on rakennettu 2007 ja tarjoaa tyylikkäitä vuokrattavia toimitiloja keskisuurten ja suurten yritysten tarpeisiin. Tilat on rakennettu luonnonvalon sisääntulo huomioiden ja kaikki tilat ovat tarvittaessa muunneltavissa vuokralaisten tarpeita ja toiveita vastaaviksi.
Kiinteistö on helposti saavutettavissa miltä tahansa suunnilta – Helsingin keskustasta pohjoiseen suuntaavat bussit kulkevat kiinteistön ohi ja raitiovaunulinja 10:n pysäkki on kiinteistön vieressä. Kohde on myös autoilijalle toimiva, sillä kohteen sijainti on suoraan pääväylien risteyskohdassa ja auton saa parkkiin kiinteistön pysäköintihalliin. Kiinteistö tarjoaa vuokralaisille mm. aulapalvelun, lounasravintolan, erikseen vuokrattavissa olevia yhteiskäyttöneuvotteluhuoneita, kuntosalia ja sosiaalitiloja unohtamatta. Huomaathan, että ilmoituksen kuvat ovat yleiskuvia kohteesta.
Croisette on uusi ja innovatiivinen toimitilojen välitysyritys Suomessa. Meillä on vahva halu auttaa teitä löytämään paras toimitilaratkaisu mahdollisimman vaivattomasti.
Huomaathan, että kaikki vapaat ja vapautuvat tilat ovat kauttamme saatavilla. Osa tiloista on hiljaisessa markkinoinnissa, mutta ottamalla meihin yhteyttä saat nekin tietoosi.
Palvelumme on tilanhakijoille täysin maksutonta.
Hissi
Croisette Real Estate Partner
Erottajankatu 5 A 6, 00130 Helsinki
Näytä puhelinnumero
+358 400 585 857
Croisette Vuokraus
Näytä puhelinnumero
+358400585857
