Myydään toimistotilat, varastotilat - Espoo
Suomalaistentie 1-3, Suomenoja, 02650 Espoo #10858129
Myydään kolme vuokrattua huoneistoa huippusijainnilta Espoon Suomenojalta
Osoite
Suomalaistentie 1-3, 02650 Espoo
Tilatyyppi
Toimistotilaa
453 m2
Varastotilaa
453 m2
Yhteensä
453 m2
Pysäköinti
Pihalla
Muuta
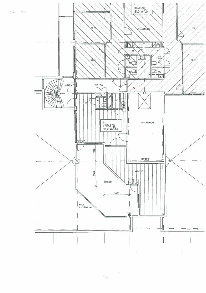
Myytävänä kolme toisen kerroksen huoneistoa osoitteessa Suomalaistentie 1â3, Suomenoja, Espoo. Huoneistot 7 ja 8 ovat toimistotiloja (185,50 m² ja 202,50 m²) ja huoneisto 9 varastotila (65 m²). Yhtiöjärjestyksen mukainen kokonaispinta-ala on yhteensä 453 m². Myytävä kokonaisuus käsittää osakkeet 403â484.
Kaikki tilat on vuokrattu. Kohde soveltuu sijoittajalle valmiina vuokrakokonaisuutena. Rakennus sijaitsee omalla 3071 m² tontilla ja rakennuksen kokonaispinta-ala on 2230 m². Energialuokka on E.
Kiinteistöä on hoidettu suunnitelmallisesti. Katto- ja julkisivuremontit on toteutettu, ja lisäksi IV-kanavien sekä salaojien huollot on tehty. Huoneistot sijaitsevat 2. kerroksessa, eikä kiinteistössä ole hissiä. Pihalla on pysäköintimahdollisuus.
Sijainti Länsiväylän varrella Finnoon liikenneympyrän vieressä tarjoaa sujuvat liikenneyhteydet.
Tervetuloa tutustumaan, varaathan välittäjältä oman esittelyaikasi. Voit kysyä meiltä myös muita sopivia vaihtoehtoja, kauttamme löydät juuri Teidän tarpeisiinne sopivat tilat. Palvelumme on tilanhakijalle veloitukseton!
Kaikki tilat on vuokrattu. Kohde soveltuu sijoittajalle valmiina vuokrakokonaisuutena. Rakennus sijaitsee omalla 3071 m² tontilla ja rakennuksen kokonaispinta-ala on 2230 m². Energialuokka on E.
Kiinteistöä on hoidettu suunnitelmallisesti. Katto- ja julkisivuremontit on toteutettu, ja lisäksi IV-kanavien sekä salaojien huollot on tehty. Huoneistot sijaitsevat 2. kerroksessa, eikä kiinteistössä ole hissiä. Pihalla on pysäköintimahdollisuus.
Sijainti Länsiväylän varrella Finnoon liikenneympyrän vieressä tarjoaa sujuvat liikenneyhteydet.
Tervetuloa tutustumaan, varaathan välittäjältä oman esittelyaikasi. Voit kysyä meiltä myös muita sopivia vaihtoehtoja, kauttamme löydät juuri Teidän tarpeisiinne sopivat tilat. Palvelumme on tilanhakijalle veloitukseton!
Vapautuu
Kysy
Rakennusvuosi
1990
Kerros
2
Ota yhteyttä
Tuloskiinteistöt Oy
Rikhardinkatu 2 B 5, 00130 Helsinki
Näytä puhelinnumero
(09) 6841 620
Jorma Ryynänen
Commercial Real Estate Advisor LKV, LVV
Näytä puhelinnumero
+358 40 708 4064
Johnny Larsson
Director, Partner
Näytä puhelinnumero
+358 40 018 1918
Pyydä lisätietoa
