Vuokrataan toimistotilat - Helsinki
Rikhardinkatu 2, Kaartinkaupunki, 00130 Helsinki #10858043
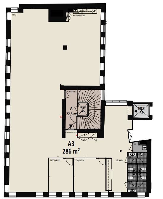
Historiallisen Kasarmitorin välittömästä läheisyydestä upea toisen kerroksen 286 m² toimisto.
Osoite
Rikhardinkatu 2, 00130 Helsinki
Tilatyyppi
Toimistotilaa
286 m2
Pohjapiirros
Kiinteistö
Kasarmitorin vieressä kävelymatkan päässä Esplanadilta on vapaana viihtyisä avotoimisto. Tila on saneerattu muutamia vuosia sitten ja on erittäin siistissä kunnossa. Se sisältää avotilaa, kaksi neuvotteluhuonetta, keittiö-/taukotilan sekä wc:t. Toimistoon on kulku sekä Rikhardinkadun puolelta että kulunvalvotulla hissillä Kasarmikadulta. Kiinteistöstä löytyy suihkutilat vuokralaisten käyttöön.
Kiinteistö koostuu kahdesta toisiinsa kytketyistä arvokiinteistöstä, joilla on sisäyhteys ja yhteinen sisäpiha. Rikhardinkatu 2 on vuodelta 1891 ja arkkitehti Carl Rupert Rosenbergin suunnittelema. Kasarmikatu 42 on professori J.S. Sirenin suunnittelema ja valmistunut vuonna 1891. Siren on suunnitellut myös Eduskuntatalon. Vuosien 2018-2023 aikana rakennusten laajassa peruskorjauksessa tehtiin mm. linjasaneeraus ja uusittiin talotekniikka kokonaisuudessaan. Kiinteistön tilat ovatkin erinomaisessa kunnossa, ja siellä on helppo viihtyä ja työskennellä.
Rakennuksen kivijalassa on sekä kahvila että ravintola. Lisäksi lähistöltä löytyy useita keskustan ravintoloita ja muita palveluita.
Kiinteistö koostuu kahdesta toisiinsa kytketyistä arvokiinteistöstä, joilla on sisäyhteys ja yhteinen sisäpiha. Rikhardinkatu 2 on vuodelta 1891 ja arkkitehti Carl Rupert Rosenbergin suunnittelema. Kasarmikatu 42 on professori J.S. Sirenin suunnittelema ja valmistunut vuonna 1891. Siren on suunnitellut myös Eduskuntatalon. Vuosien 2018-2023 aikana rakennusten laajassa peruskorjauksessa tehtiin mm. linjasaneeraus ja uusittiin talotekniikka kokonaisuudessaan. Kiinteistön tilat ovatkin erinomaisessa kunnossa, ja siellä on helppo viihtyä ja työskennellä.
Rakennuksen kivijalassa on sekä kahvila että ravintola. Lisäksi lähistöltä löytyy useita keskustan ravintoloita ja muita palveluita.
Lisätietoa saneerauksista
Uusi osa rakennettu 1933.
Vapautuu
Heti
Rakennusvuosi
1890
Kerros
2 / 5
Energiatehokkuusluokka
Ei lain edellyttämää energiatodistusta
Näkyvällä paikalla
Ota yhteyttä
ScanReal Oy LKV
Opus Business Park
Hitsaajankatu 24
00810 Helsinki
info@scanreal.fi
Puh:
Näytä puhelinnumero
020 730 8830
Sopivat toimitilat yhdellä otolla!
Kartoitamme toimitilatarpeesi ja etsimme yrityksellesi parhaiten sopivat vapaat toimitilat. Koska vuokranantajat maksavat palvelumme, on tämä yrityksellesi veloituksetonta.
OTA YHTEYTTÄ - SOVI NÄYTTÖ!
Kaikki kohteemme eivät ole netissä, kerro tilatarpeesi niin kartoitamme vaihtoehdot.
Palvelumme on tilanhakijalle ilmainen
Pyydä lisätietoa
