Vuokrataan liiketilat - Jyväskylä
FORUM Vapaudenkatu 49-51, Vapaudenkatu 49-51, Keskusta, 40100 Jyväskylä #10858007
Vuokrataan valmis ravintolatila Jyväskylän keskustasta
Osoite
Vapaudenkatu 49-51, 40100 Jyväskylä
Tilatyyppi
Liiketilaa
426 m2
Muuta
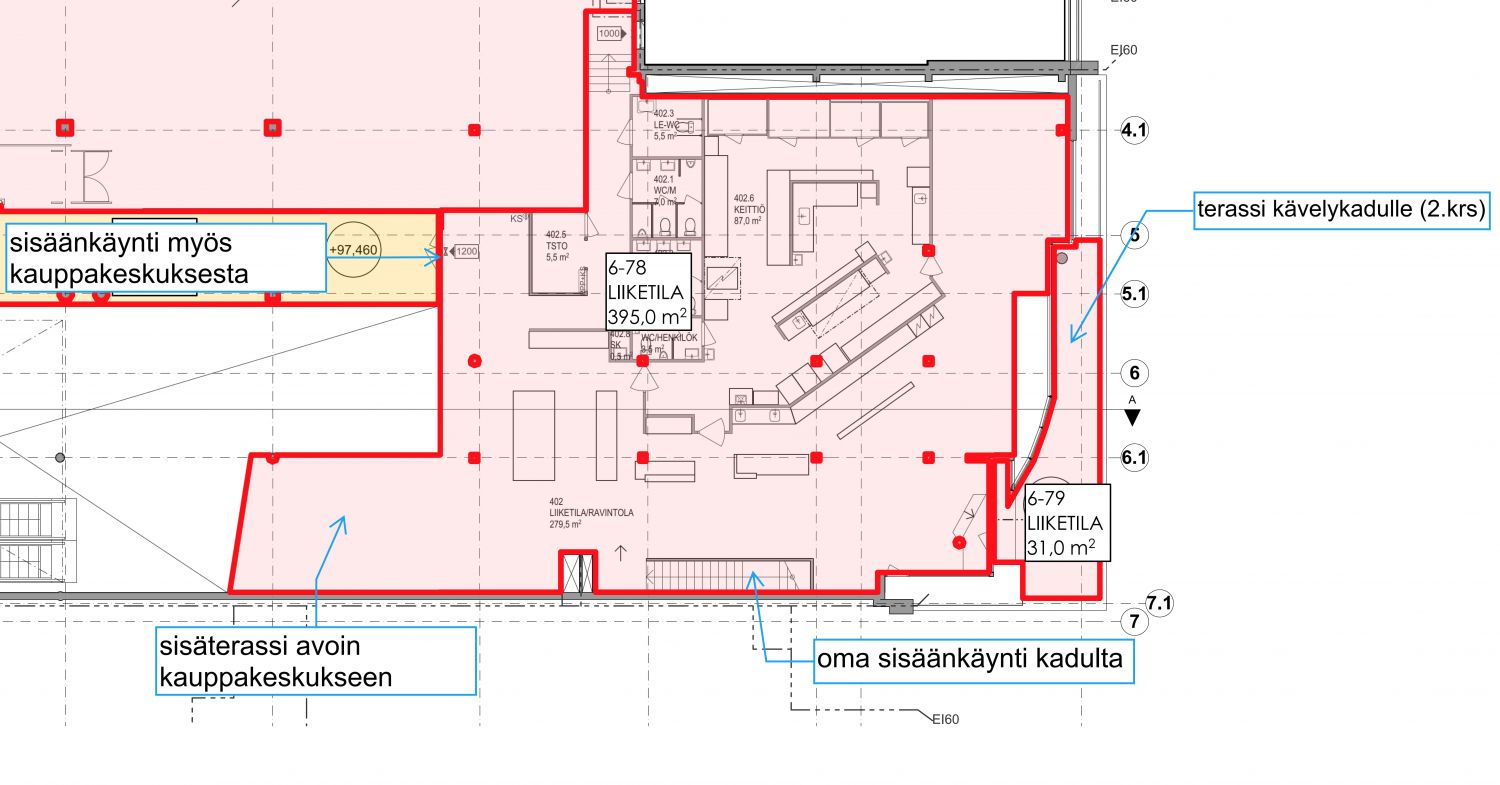
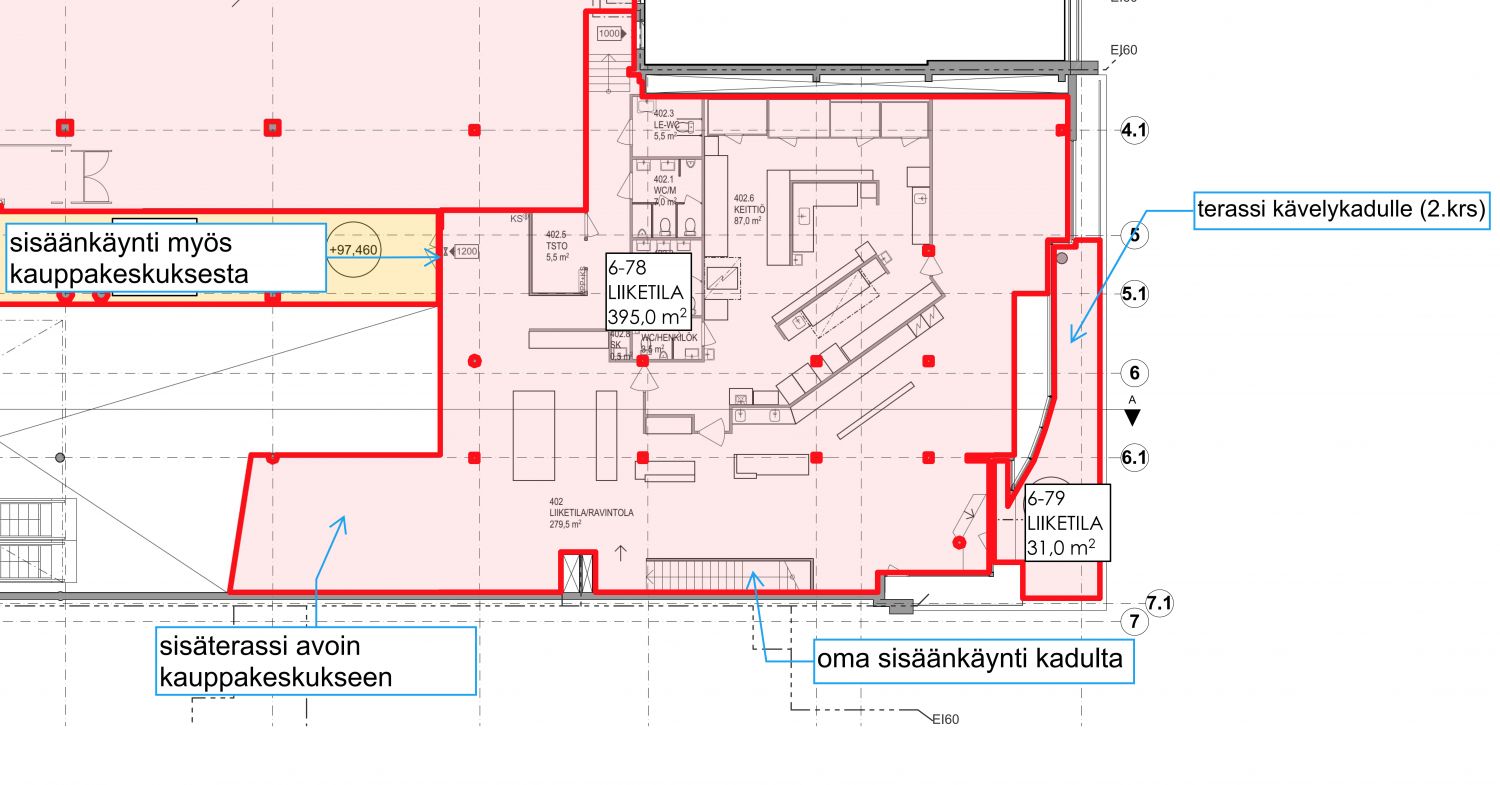
Kauppakeskus Forumista vuokrataan mm. ravintolatoimintaan soveltuvaa liiketilaa. Sisäänkäynti tilaan löytyy niin kauppakeskuksesta kuin suoraan Kauppakadultakin. Tilassa kattoterassi vilkkaan Kävelykadun suuntaan.
Forum on Jyväskylän keskustan monipuolinen ja uudistuva kauppakeskus johon on helppo tulla kävellen, pyörällä, bussilla tai autolla. Jyväskylän paikallisliikenteen linjat pysähtyvät suoraan Forumin pääovien edessä. Kauempaa, Jyväskylän matkakeskuksen kautta saapuvilta kauppakeskukseen on noin 300 m matka. Polkupyörä- ja skuuttiparkkeja on mm. Asemakadulta ja Asema-aukiolta ja autoille 24/7 pysäköintitilaa löytyy lämpimästä parkkihallista.
Soita ja kysy lisätietoja!
Forum on Jyväskylän keskustan monipuolinen ja uudistuva kauppakeskus johon on helppo tulla kävellen, pyörällä, bussilla tai autolla. Jyväskylän paikallisliikenteen linjat pysähtyvät suoraan Forumin pääovien edessä. Kauempaa, Jyväskylän matkakeskuksen kautta saapuvilta kauppakeskukseen on noin 300 m matka. Polkupyörä- ja skuuttiparkkeja on mm. Asemakadulta ja Asema-aukiolta ja autoille 24/7 pysäköintitilaa löytyy lämpimästä parkkihallista.
Soita ja kysy lisätietoja!
Vapautuu
Kysy
Kerros
4
Ota yhteyttä
Infonia Oy
Kauppakatu 18 A, 40100 Jyväskylä
Näytä puhelinnumero
+358 407579731
Mikko Hirvi
Näytä puhelinnumero
+358 407579731
Pyydä lisätietoa
