Vuokrataan toimistotilat - Helsinki
Vääksyntie 2, Vallila, 00510 Helsinki #10857989
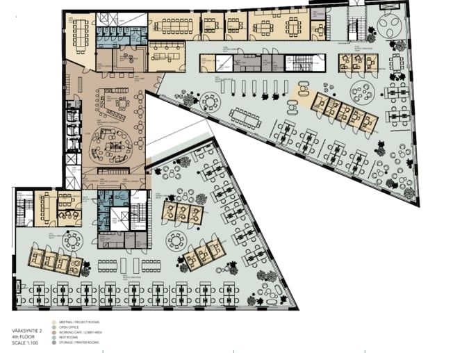
Nyt vuokrattavissa laaja 4. kerroksen toimistotila, joka soveltuu noin 120–150 henkilölle. Tilassa on avotoimistotilaa, työ- ja kokoushuoneita sekä oleskelu-/taukotilat. Suurista ikkunoista avautuvat näkymät Teollisuuskadulle, Dallapénpuistoon ja Vääksyntielle. Lisäksi tilaan on mahdollisuus yhdistää 5. kerroksen tilaan ja saada tilan kokoa nostettua jopa 3710 m² kokonaisuudeksi.
Tämä OP:n pääkonttorina tunnettu moderni toimistokortteli on vuosina 2015–2017 valmistunut JKMM Arkkitehditn suunnittelemana ja LEED Gold -sertifioitu toimitilakiinteistö. Avarat ja valoisat tilat, korkealaatuiset materiaalit sekä vuodesta 2024 alkaen hiilineutraali toiminta tekevät kohteesta vastuullisen ja viihtyisän työympäristön. Rakennuksessa on kattavat palvelut, kuten useita lounasravintoloita, aulapalvelu, edustavat neuvottelutilat sekä kuntosali-, työterveys-, hieronta- ja kampaamopalvelut.
Vallila on tunnelmallinen alue noin 3 km Helsingin keskustasta. Alueelta on erinomaiset raitiovaunu- ja bussiyhteydet sekä nopea yhteys Pasilan asemalle ja pääväylille. Läheltä löytyvät monipuoliset lounasravintolat, kahvilat ja päivittäispalvelut, ja urbaani ympäristö yhdistyy sujuvaan saavutettavuuteen niin julkisilla kuin autolla.
Me Croisettella autamme teitä löytämään teille parhaat tilat! Olemme puolueettomia asiantuntijoita ja tunnemme toimitilamarkkinat, talot sekä tilat vankalla kokemuksella. Meillä on välityksessä kaikki toimitilat ja tiedämme niiden alustavat vuokratasot.
Tehtävämme on tehdä toimitilahaustanne onnistunutta ja helppoa. Saamme palkkiomme kiinteistönomistajalta, joten sinulle palvelumme on täysin maksuton. Jos kiinnostuit, ota yhteyttä!
Croisette Real Estate Partner
Erottajankatu 5 A 6, 00130 Helsinki
Näytä puhelinnumero
+358 400 585 857
Croisette Vuokraus
Näytä puhelinnumero
+358400585857
