Vuokrataan toimistotilat, tuotantotilat, varastotilat, työtilat - Turku
Kimokatu 5, 20380 Turku #10857976
Vuokrattavana toimitila n. 360 m²
Osoite
Kimokatu 5, 20380 Turku
Tilatyyppi
Toimistotilaa
60 m2
Tuotantotilaa
300 m2
Varastotilaa
300 m2
Työtilaa
360 m2
Yhteensä
360 m2
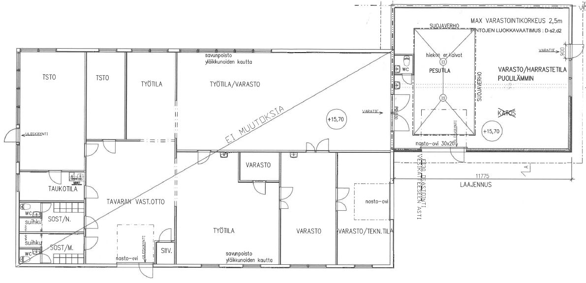
Pohjapiirros
Vuokra
Tiedustele!
Muuta
Keskeisellä sijainnilla oleva kiinteistö, josta nyt vuokrattavissa n. 360m²:n toimitila.
Tämä kohde soveltuu monenlaiseen toimintaan, mm. tukkuliikkeelle, rakennusliikkeelle, jne.
Kiinteistössä on hallitilaa ja toimistotilaa.
Rakennukseen on 2 nosto-ovea ja käyntiovi.
Suojaisalle pihalle pääsee sähkökäyttöisen portin kautta ja pihatilaa on moneen toimintaan riittävästi.
Vuokrattava tila on siistissä toiminnallisessa kunnossa.
Kohde ei sovellu autokorjaamoksi tai autopesulaksi.
Tähän kannattaa ehdottomasti tutustua.
www.kaupunki.com
Tämä kohde soveltuu monenlaiseen toimintaan, mm. tukkuliikkeelle, rakennusliikkeelle, jne.
Kiinteistössä on hallitilaa ja toimistotilaa.
Rakennukseen on 2 nosto-ovea ja käyntiovi.
Suojaisalle pihalle pääsee sähkökäyttöisen portin kautta ja pihatilaa on moneen toimintaan riittävästi.
Vuokrattava tila on siistissä toiminnallisessa kunnossa.
Kohde ei sovellu autokorjaamoksi tai autopesulaksi.
Tähän kannattaa ehdottomasti tutustua.
www.kaupunki.com
Vapautuu
Heti
Katutasossa
Ota yhteyttä
Kaupunkikiinteistöt LKV
Tiedustelut ja esittelyt puh. Näytä puhelinnumero 0440 245 600 / Ismo Koskinen
http://www.kaupunki.comPyydä lisätietoa
