Vuokrataan toimistotilat - Helsinki
Porkkalankatu 22, 00180 Helsinki #10857949
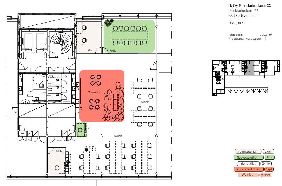
Tyylikäs huonekonttori, jossa on myös pieni avotila keskellä tilaa lähellä keittiötä. 5 toimistohuonetta ja 4 eri kokoista omaa neuvottelutilaa. 2 wc:tä ja erillinen keittiö. Läpitalon huoneisto, ikkunat molemmin puolin tilaa Porkkalankadulle ja sisäpihalle. Kuvissa esimerkkejä toimistotiloista.
Vuonna 2008 valmistunut toimistotalo sijaitsee Ruoholahden paraatipaikalla. Vieressä sijaitsevat niin Ruoholahden Kauppakeskus palveluineen kuin metroasemakin. Kiinteistössä on aula- ja pitopalvelu, lounasravintola ja vuokrattavia neuvottelutiloja. Pysäköinti on järjestetty Ruoholahden pysäköintilaitoksessa, joista on hisseillä kulku kerroksiin.
Toimistotilat ovat moderni yhdistelmä huoneita ja avotilaa. Toimistotilojen ominaisuudet täyttävät kaikki nykyaikaisen toimistotyön vaatimukset. Ruoholahden Tähti toimistotalolle on myönnetty käytössä olevan kiinteistön BREEAM® In-Use ympäristösertifikaatti.
