Vuokrataan toimistotilat - Helsinki
Ruoholahdenkatu 14, Kamppi, 00180 Helsinki #10857922
Remontoitu, moderni 140 m² toimisto hyvällä sijainnilla Kampissa
Osoite
Ruoholahdenkatu 14, 00180 Helsinki
Tilatyyppi
Toimistotilaa
140 m2
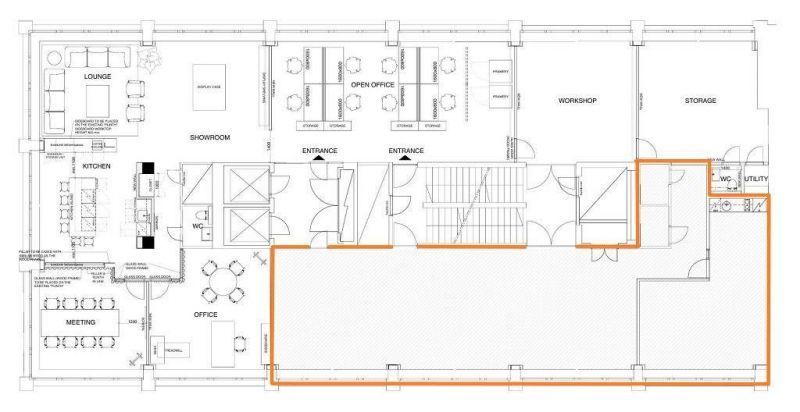
Pohjapiirros
Kiinteistö
Ruoholahdenkatu 14 tarjoaa modernit ja muunneltavat toimistotilat Helsingin Kampissa, aivan Lastenlehdon puiston ja Kampin keskustorin tuntumassa. Kuudennen kerroksen 140 m²:n toimistossa on avotoimisto, neuvotteluhuone ja oma keittiö. Ikkunoista avautuvat upeat näkymät puistoihin ja kaupungin kattojen yli, ja juuri remontoitu aula luo tyylikkään ensivaikutelman.
Tilat on helppo räätälöidä yrityksen tarpeisiin ja brändiin sopiviksi. Kiinteistössä on hyvät pysäköintimahdollisuudet sekä autolle että pyörälle, lukittu pyöräparkki, pyöränhuoltopiste, kuivauskaapit sekä uudet suihku- ja pukuhuonetilat.
Sijainti tarjoaa erinomaiset liikenneyhteydet: julkisen liikenteen pysäkit ovat talon edessä, metroasemalle pääsee alle kymmenessä minuutissa, ja autolla saapuminen Länsiväylältä on vaivatonta. Kampin alueen monipuoliset palvelut, kuten ravintolat, kahvilat, hyvinvointi- ja kulttuuripalvelut, tekevät arjesta sujuvaa ja viihtyisää.
Ekologisuus ja kestävä kehitys ovat arjessa läsnä: hiilineutraali jätehuolto, hiilidioksidivapaat sähkösopimukset, energiatehokkuuden parannukset ja BREEAM Very Good -sertifiointi. Käytetyt materiaalit ja tuotteet ovat CE-merkittyjä ja M1-luokiteltuja.
Tilat on helppo räätälöidä yrityksen tarpeisiin ja brändiin sopiviksi. Kiinteistössä on hyvät pysäköintimahdollisuudet sekä autolle että pyörälle, lukittu pyöräparkki, pyöränhuoltopiste, kuivauskaapit sekä uudet suihku- ja pukuhuonetilat.
Sijainti tarjoaa erinomaiset liikenneyhteydet: julkisen liikenteen pysäkit ovat talon edessä, metroasemalle pääsee alle kymmenessä minuutissa, ja autolla saapuminen Länsiväylältä on vaivatonta. Kampin alueen monipuoliset palvelut, kuten ravintolat, kahvilat, hyvinvointi- ja kulttuuripalvelut, tekevät arjesta sujuvaa ja viihtyisää.
Ekologisuus ja kestävä kehitys ovat arjessa läsnä: hiilineutraali jätehuolto, hiilidioksidivapaat sähkösopimukset, energiatehokkuuden parannukset ja BREEAM Very Good -sertifiointi. Käytetyt materiaalit ja tuotteet ovat CE-merkittyjä ja M1-luokiteltuja.
Vapautuu
Heti
Rakennusvuosi
1966
Kerros
6 / 7
Energiatehokkuusluokka
Ei lain edellyttämää energiatodistusta
Ympäristöluokitus
BREAM Very Good
Näkyvällä paikalla
Hissi
Ota yhteyttä
ScanReal Oy LKV
Opus Business Park
Hitsaajankatu 24
00810 Helsinki
info@scanreal.fi
Puh:
Näytä puhelinnumero
020 730 8830
Sopivat toimitilat yhdellä otolla!
Kartoitamme toimitilatarpeesi ja etsimme yrityksellesi parhaiten sopivat vapaat toimitilat. Koska vuokranantajat maksavat palvelumme, on tämä yrityksellesi veloituksetonta.
OTA YHTEYTTÄ - SOVI NÄYTTÖ!
Kaikki kohteemme eivät ole netissä, kerro tilatarpeesi niin kartoitamme vaihtoehdot.
Palvelumme on tilanhakijalle ilmainen
Pyydä lisätietoa
