Vuokrataan toimistotilat - Helsinki
Ruoholahdenkatu 14, Kamppi, 00180 Helsinki #10857921
Remontoitu, moderni 410 m² toimisto hyvällä sijainnilla Kampissa
Osoite
Ruoholahdenkatu 14, 00180 Helsinki
Tilatyyppi
Toimistotilaa
410 m2
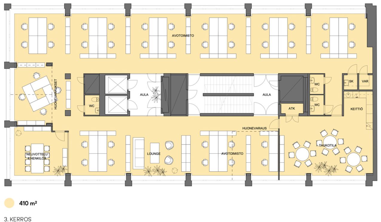
Pohjapiirros
Kiinteistö
Ruoholahdenkatu 14 kolmannen kerroksen 410 m²:n toimistokokonaisuus tarjoaa valoisat ja tehokkaat puitteet aivan Kampin ytimessä. Tilassa on laaja avotoimistoalue, useita erillisiä työ- ja neuvotteluhuoneita, edustava huonevarauksella varustettu neuvottelutila, viihtyisä lounge-alue sekä tilava taukotila keittiön yhteydessä. Useat wc-tilat, oma keittiö ja selkeä aulavyöhyke tekevät arjesta sujuvaa. Suuret ikkunat tuovat runsaasti luonnonvaloa, ja 60-luvun arkkitehtuurin yksityiskohdat luovat tilaan persoonallista ilmettä.
Perinteikkääseen kiinteistöön on toteutettu kattava energiaremontti, jossa talotekniikka on uusittu ja energiatehokkuutta parannettu merkittävästi. Rakennuksella on Very Good -tason BREEAM-sertifiointi sekä hiilidioksidivapaa sähkösopimus ja hiilineutraali jätehuolto. Vastuulliset materiaalivalinnat ja modernisoidut aulatilat viimeistelevät laadukkaan kokonaisuuden.
Arki sujuu vaivattomasti oman autohallin ja sisäpihan pysäköintipaikkojen ansiosta. Pyöräilijöitä palvelevat lukittu pyöräparkki, huoltopiste sekä uusitut suihku- ja pukutilat. Sijainti Kampin keskustorin läheisyydessä takaa erinomaiset julkiset yhteydet, nopeat yhteydet Länsiväylälle ja kävelyetäisyyden alueen monipuolisiin palveluihin. Tämä kolmannen kerroksen toimisto tarjoaa yrityksellesi edustavan, muuntojoustavan ja helposti saavutettavan työympäristön keskeisellä sijainnilla.
Perinteikkääseen kiinteistöön on toteutettu kattava energiaremontti, jossa talotekniikka on uusittu ja energiatehokkuutta parannettu merkittävästi. Rakennuksella on Very Good -tason BREEAM-sertifiointi sekä hiilidioksidivapaa sähkösopimus ja hiilineutraali jätehuolto. Vastuulliset materiaalivalinnat ja modernisoidut aulatilat viimeistelevät laadukkaan kokonaisuuden.
Arki sujuu vaivattomasti oman autohallin ja sisäpihan pysäköintipaikkojen ansiosta. Pyöräilijöitä palvelevat lukittu pyöräparkki, huoltopiste sekä uusitut suihku- ja pukutilat. Sijainti Kampin keskustorin läheisyydessä takaa erinomaiset julkiset yhteydet, nopeat yhteydet Länsiväylälle ja kävelyetäisyyden alueen monipuolisiin palveluihin. Tämä kolmannen kerroksen toimisto tarjoaa yrityksellesi edustavan, muuntojoustavan ja helposti saavutettavan työympäristön keskeisellä sijainnilla.
Vapautuu
Heti
Rakennusvuosi
1966
Kerros
3 / 7
Energiatehokkuusluokka
Ei lain edellyttämää energiatodistusta
Ympäristöluokitus
BREAM Very Good
Näkyvällä paikalla
Hissi
Ota yhteyttä
ScanReal Oy LKV
Opus Business Park
Hitsaajankatu 24
00810 Helsinki
info@scanreal.fi
Puh:
Näytä puhelinnumero
020 730 8830
Sopivat toimitilat yhdellä otolla!
Kartoitamme toimitilatarpeesi ja etsimme yrityksellesi parhaiten sopivat vapaat toimitilat. Koska vuokranantajat maksavat palvelumme, on tämä yrityksellesi veloituksetonta.
OTA YHTEYTTÄ - SOVI NÄYTTÖ!
Kaikki kohteemme eivät ole netissä, kerro tilatarpeesi niin kartoitamme vaihtoehdot.
Palvelumme on tilanhakijalle ilmainen
Pyydä lisätietoa
