Vuokrataan toimistotilat - Helsinki
Lemuntie 3-5, Vallila, 00510 Helsinki #10857897
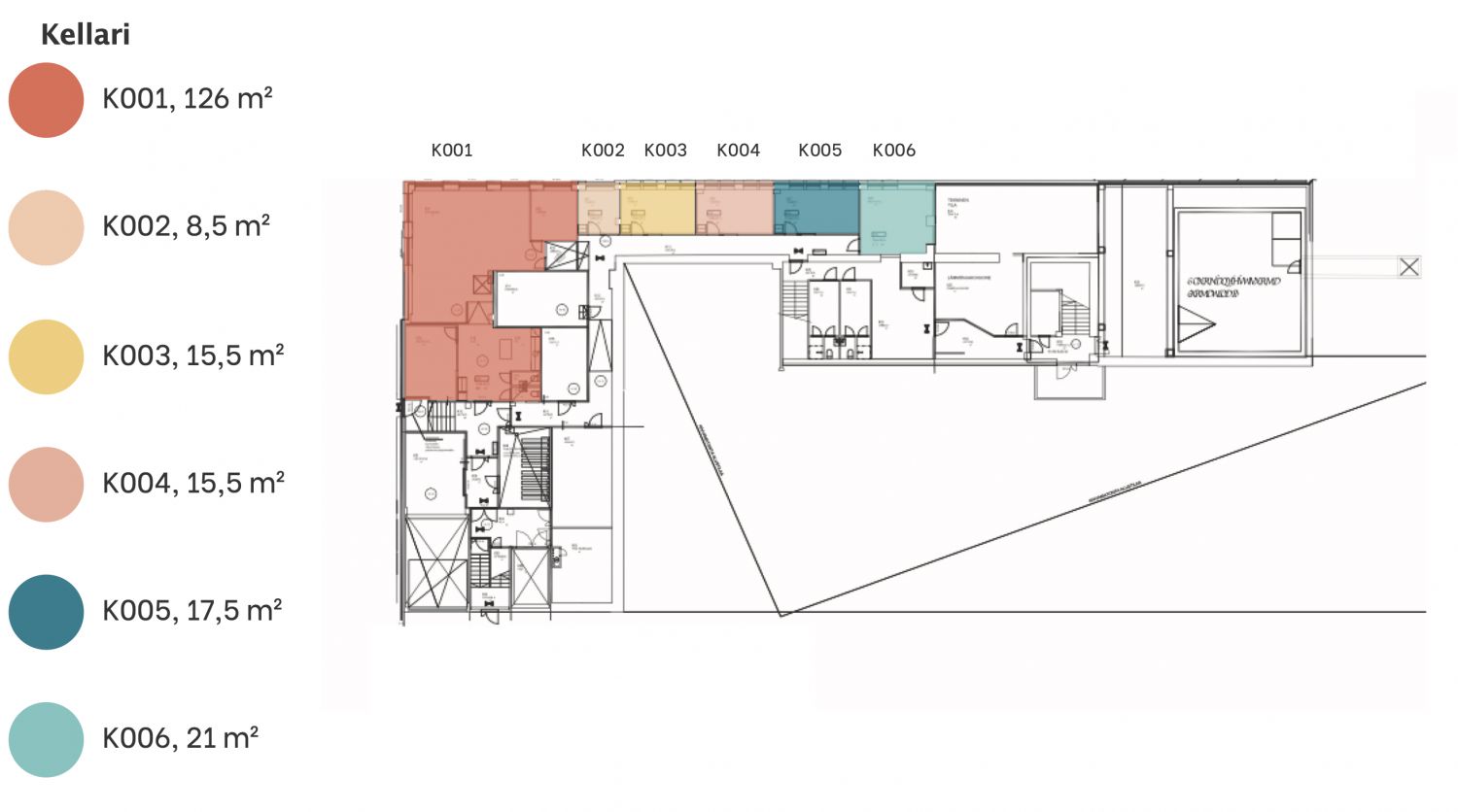
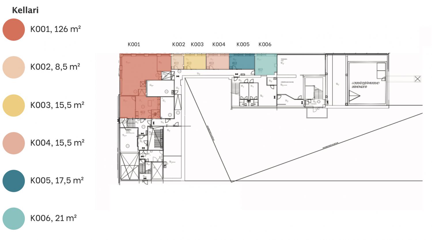
Vuokrataan siisti tila jossa omat wc ja keittiö. Tilasta löytyy avotilaa, työhuone ja neuvotteluhuone. Tilan lähellä maantason nosto-ovi. Pohjakuvassa tila K001.
Vuokrattavana liike-/näyttelytilaa sekä toimistoa Akseli Showroom - muotoilun ja sisustamisen keskittymässä. Akselin tarina alkoi keväällä 2005, kun designammattilaisten ryhmä sisustusarkkitehteja, teollisia muotoilijoita, designtuotteiden valmistajia sekä maahantuojia päättivät yhdessä vuokrata Vallilassa sijaitsevan vanhan Kutter-linja-autokoritehtaan käyttöönsä designnäyttelykeskukseksi.
Lisätietoja numerosta 020 7290 710. Lisää kohteita osoitteessa www.premises.fi.
Kohteella ei ole lain edellyttämää energiatodistusta.Kerros: K1
CRE PREMISES
Puh. Näytä puhelinnumero 020 7290 710
Vantaankoskentie 14
01670 VANTAA
