Vuokrataan tuotantotilat, varastotilat - Helsinki
Hankasuontie 9, Konala, 00390 Helsinki #10857896
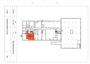
Vuokrataan kahdesta vierekkäisestä tilasta koostuva varasto sekä pieni toimistohuone rakennuksen alimmasta kerroksesta. Tilojen välillä pääsee kulkemaan myös sisäkautta. Kumpaankin tilaan oma pariovi suoraan pihalta. Tila ei sovellu autopesu- tai korjaamotoimintaan.
Tämä teollisuuskiinteistö on peruskorjattu vuosien 2009 ja 2010 aikana, jolloin uusittiin rakenteiden ja pintojen ohella myös tekniikka. Kohteen tilat soveltuvat mm. metallinkäsittelyyn tai muuhun vastaavaan pienteolliseen toimintaan. Rakennuksessa toimii tällä hetkellä yrityksiä mm. maahantuonnin, tukkukaupan ja kokoonpanon aloilta. Tiloissa on myös koulutustiloja valmiina. Kiinteistössä tavarahissi (3,5 tn) sekä lastauslaituri.
Lisätietoja numerosta 020 7290 710. Lisää kohteita osoitteessa www.premises.fi.
Kohteella ei ole lain edellyttämää energiatodistusta tai energialuokka ei tiedossa.Kerros: kellari
CRE PREMISES
Puh. Näytä puhelinnumero 020 7290 710
Vantaankoskentie 14
01670 VANTAA
