Vuokrataan toimistotilat - Helsinki
Fredrikinkatu 55, Kamppi, 00100 Helsinki #10857894
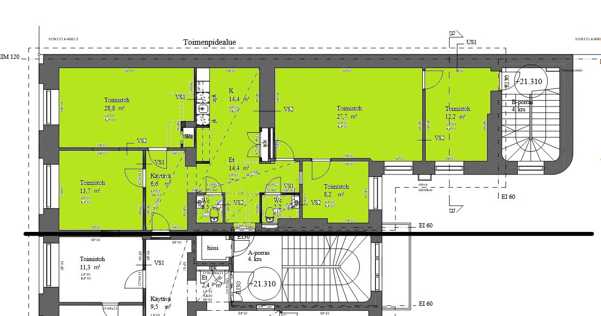
FREDRIKINKATU 55 - toimistotila 120m2
HYVÄ HINTA-LAATUSUHDE !!!
Tämä juuri remontoitu toimistotila sijaitsee rakennuksen 4. kerroksessa.
Tilakokonaisuuteen kuuluu 5 työskentelytilaa, joista pari hieman isompikokoista- ja kolme pienempää tilaa.
Hyvän kokoinen design-keittiö, mihin mahtuu ruokailupöytä ja kaksi WC-tilaa.
Tietoliikenneyhteys valokuidulla. Painovoimainen ilmanvaihto.
HUOM! Mahdollisuus vuokrata 1 kpl autopaikkoja.
Lisätiedot ja kohdenäytöt: p. 040 7070 321 / HeikkiKerros: 4
Osoite
Fredrikinkatu 55, 00100 Helsinki
Tilatyyppi
Toimistotilaa
120 m2
Kulkuyhteydet
Kampin metro- ja bussiterminaali lyhyen kävelymatkan päässä. Myös raitiovaunupysäkit ihan vieressä. Useat läheiset pysäköintilaitokset palvelevat henkolöautoilijoita.
Ota yhteyttä
CRE PREMISES
Puh. Näytä puhelinnumero 020 7290 710
Vantaankoskentie 14
01670 VANTAA
Pyydä lisätietoa
