Vuokrataan varastotilat - Espoo
Sierakiventie 8-10, Kauklahti, 02780 Espoo #10857864
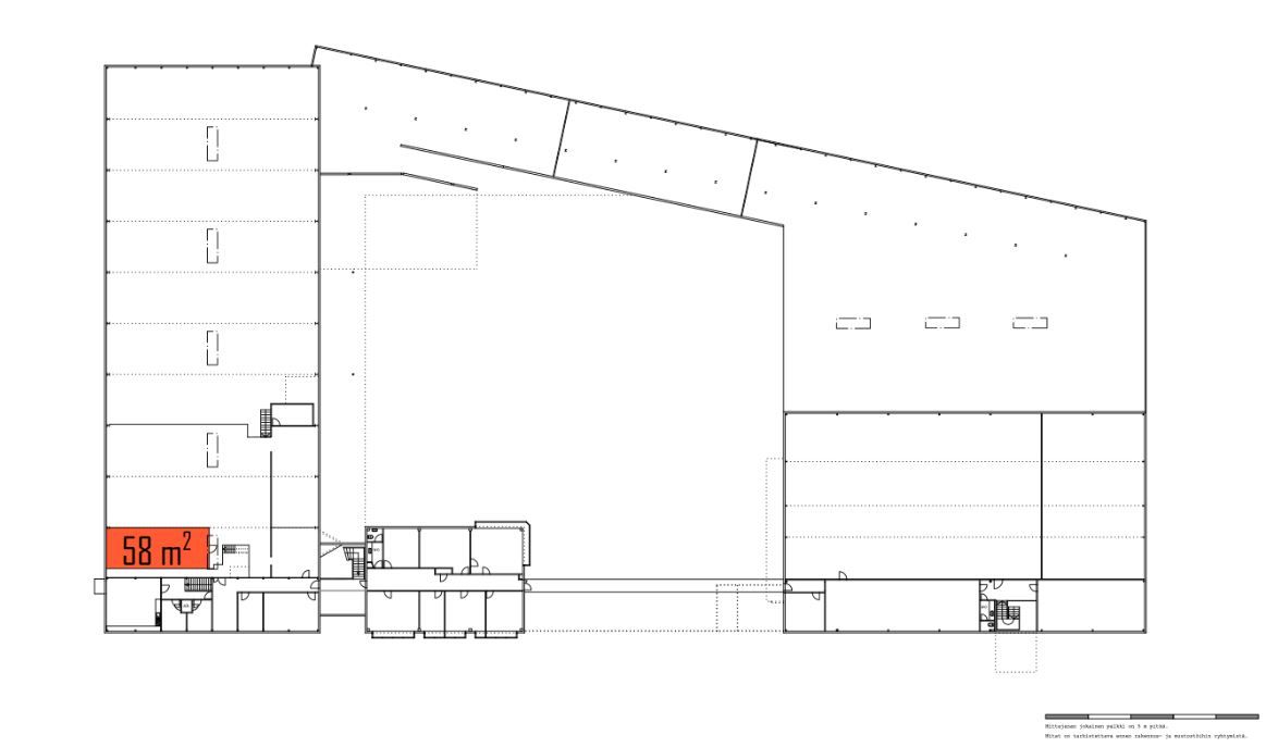
Vuokrataan erillinen verkkoseinäinen varastotila, jonka korkeus on 2,5 m. Kuivan ja lämpimän tilan koko on 58 m2. Tämä toisen kerroksen varastotila soveltuu esim. pientavaroiden varastointiin. Tilan pitkillä sivuilla on valmiiksi hyllyjä.
Hyväkuntoinen ja monipuolinen toimisto- ja varastokiinteistö on valmistunut 1980-luvulla Espoon Kauklahteen. Kiinteistö sijaitsee hyvien kulkuyhteyksien varrella: Kehä III, Turunväylä, Hangontie. Sen kokonaispinta-ala on 3715 m2.
Kahden rakennuksen väliin jää tilava sisäpiha, josta vuokrataan suojakatoksellista kylmää tilaa ulkovarastoksi 1595 m2.
Tällä hetkellä Sierakiventie 8-10:n vuokralaiset toimivat erityisesti tukku- ja vähittäiskaupan sekä rakentamisen toimialoilla.
Lisätiedot 020 7290 710. Lisää kohteita www.premises.fi
Kohteella ei ole lain edellyttämää energiatodistusta tai energialuokka ei tiedossa.Kerros: 2
CRE PREMISES
Puh. Näytä puhelinnumero 020 7290 710
Vantaankoskentie 14
01670 VANTAA
