Vuokrataan toimistotilat - Espoo
Tarvonsalmenkatu 17, Perkkaa, 02600 Espoo #10857856
Derby Business Park tarjoaa yrityksille muuntojoustavaa, tehokasta ja modernia toimitilaa sekä monipuoliset palvelut.
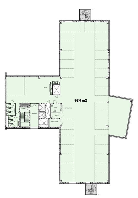
Tämä 934 m² toimistotila kattaa Voltti-talon 5. kerroksen. Toimistossa on avotilaa, useita huoneita, oma keittiö, oleskelutila sekä wc:t. Kerros voidaan tarvittaessa jakaa kahdelle käyttäjälle n. 389 m² ja 341 m² kokoisiin osiin, jolloin hissiaula ja wc:t jäävät yhteiskäyttöisiksi. 85 m² hieno maisemahuone voidaan yhdistää kumpaan vain osaan.
Kiinteistössä on aulapalvelu, tasokas lounasravintola, kuntosali ja vuokrattavia neuvottelutiloja. Talon ympäristöystävällisyyteen on kiinnitetty erityistä huomiota. Kiinteistöllä on LEED Platinum -sertifikaatti. Derby Business Parkissa on erillinen pysäköintitalo, jossa on myös sähkölatauspisteitä, jonka lisäksi kiinteistön pihalla on asiakaspaikkoja.
Kysy lisää numerosta 044 723 4700 tai info@bref.fi. Palvelumme on tilanhakijoille ilmainen.
Hissi
Bureau Real Estate Finland Oy
Lars Sonckin kaari 16, 02600 Espoo
Näytä puhelinnumero
0447234700
Bureau Real Estate Finland Oy
https://www.bref.fi