Vuokrataan varastotilat - Espoo
Revontulentie 8, Tapiola, 02100 Espoo #10857846
Varastotilaa Espoossa, hyvällä paikalla Länsiväylän pohjoispuolella.
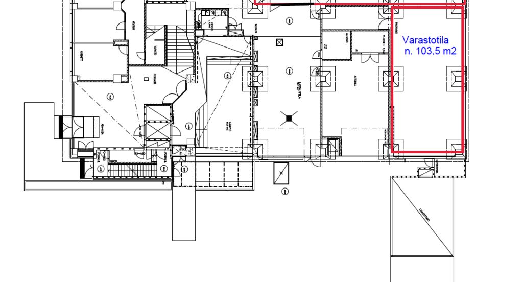
Kyseinen 103,5 m² varasto sijaitsee A-B -talon ensimmäisessä kerroksessa. Varasto on avonainen.
Revontulentie 8 A-B on hyvin saavutettavissa sekä omalla autolla että julkisilla liikennevälineillä. Tapiolan metroasemalle on lyhyt kävelymatka.
Kysy lisää numerosta 044 723 4700 tai info@bref.fi. Palvelumme on tilanhakijoille ilmainen.
Osoite
Revontulentie 8, 02100 Espoo
Tilatyyppi
Varastotilaa
103,5 m2
Palvelut
Tapiolan keskustan palvelut lähellä.
Vapautuu
Kysy
Kerros
1
Energiatehokkuusluokka
Ei lain edellyttämää energiatodistusta
Ota yhteyttä
Bureau Real Estate Finland Oy
Lars Sonckin kaari 16, 02600 Espoo
Näytä puhelinnumero
0447234700
Bureau Real Estate Finland Oy
https://www.bref.fiPyydä lisätietoa
