Vuokrataan toimistotilat - Turku
Puutarhakatu 45, Port Arthur / Linnanfältti, 20100 Turku #10857837
Toimistotila
Osoite
Puutarhakatu 45, 20100 Turku
Tilatyyppi
Toimistotilaa
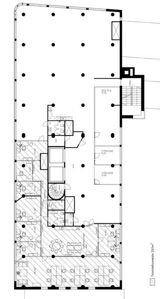
265 m2
Kiinteistö
Toimistotilaa Hansacenterissä
Vuokrataan kiva ja toimiva toimistokokonaisuus Hansacenterin kiinteistöstä. Huoneistossa on 8 kpl erillisiä työhuoneita, neuvottelutila, lounge/kahvio avokeittiöllä sekä omat wc-tilat (2 kpl). Tämä tilakokonaisuus voidaan myös liittää viereiseen, nyt raakatilana olevaan 167 m2 -kokoiseen toimistotilaan, jolloin voidaan muodostaa 432 m2 -kokoinen toimistotila.
Pinnat ovat siistissä kunnossa ja ne on remontoitu 2022. Tilasovitusta voidaan muuttaa, sillä huoneiden seinät eivät ole kantavia seiniä.
Tiloissa on hyvä ilmanvaihto. Alakerrasta löytyy lounasravintola.
Pysäköintitilaa löytyy piha-alueelta 4 h kiekkopaikoilta ja kadun varressa on vapaa pysäköinti. Vuokraustilanteesta riippuen joitakin pysäköintipaikkoja on myös mahdollista vuokrata yrityksen omaan käyttöön pihasta.
Näppärä sijainti Tukholmankadun kupeesta takaa hyvät liikenneyhteydet eri suuntiin.
Kiinnostuitko? Ota yhteyttä ja kysy lisää. Sovitaan tutustumisaika tähän tilaan.
Palvelumme on maksutonta tilanhakijalle.
Vuokrataan kiva ja toimiva toimistokokonaisuus Hansacenterin kiinteistöstä. Huoneistossa on 8 kpl erillisiä työhuoneita, neuvottelutila, lounge/kahvio avokeittiöllä sekä omat wc-tilat (2 kpl). Tämä tilakokonaisuus voidaan myös liittää viereiseen, nyt raakatilana olevaan 167 m2 -kokoiseen toimistotilaan, jolloin voidaan muodostaa 432 m2 -kokoinen toimistotila.
Pinnat ovat siistissä kunnossa ja ne on remontoitu 2022. Tilasovitusta voidaan muuttaa, sillä huoneiden seinät eivät ole kantavia seiniä.
Tiloissa on hyvä ilmanvaihto. Alakerrasta löytyy lounasravintola.
Pysäköintitilaa löytyy piha-alueelta 4 h kiekkopaikoilta ja kadun varressa on vapaa pysäköinti. Vuokraustilanteesta riippuen joitakin pysäköintipaikkoja on myös mahdollista vuokrata yrityksen omaan käyttöön pihasta.
Näppärä sijainti Tukholmankadun kupeesta takaa hyvät liikenneyhteydet eri suuntiin.
Kiinnostuitko? Ota yhteyttä ja kysy lisää. Sovitaan tutustumisaika tähän tilaan.
Palvelumme on maksutonta tilanhakijalle.
Vapautuu
Kysy
Kerros
5.
Ota yhteyttä
Logistila Oy
Tuureporinkatu 6, 20100 TURKU
Stina Lindroos
Näytä puhelinnumero
044 972 9468
Pyydä lisätietoa
