Vuokrataan toimistotilat, liiketilat, muut tilat - Tampere
Haarlankatu 4, Onkiniemi, 33230 Tampere #10857806
Haarlan paperitehdaskiinteistössä monikäyttöinen tila vapaana
Osoite
Haarlankatu 4, 33230 Tampere
Tilatyyppi
Toimistotilaa
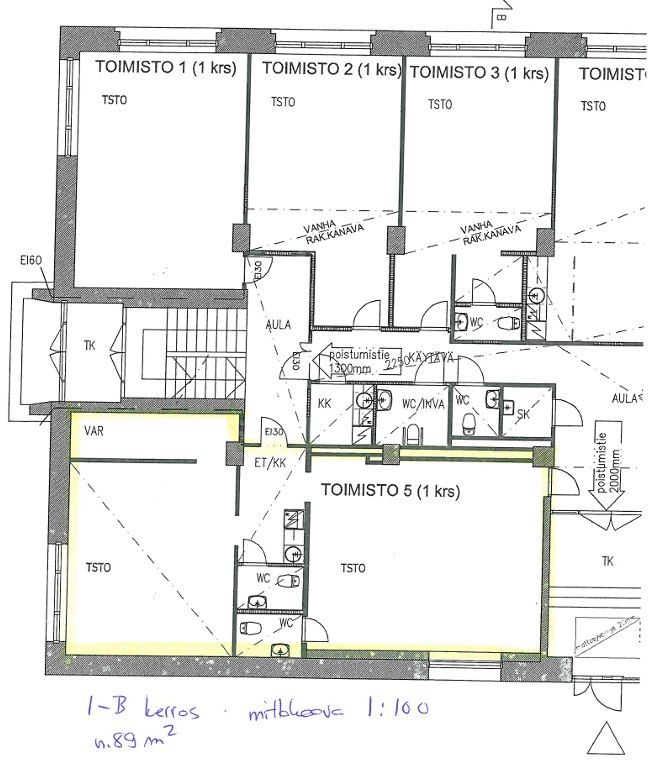
89 m2
Liiketilaa
89 m2
Muuta tilaa
89 m2
Yhteensä
89 m2
Pysäköinti
Pihassa
Muuta
Haarlan entisessä paperitehdaskiinteistössä monikäyttöistä toimistotilaa
Bertel Strömmerin suunnittelemassa tehdasrakennuksessa toimi vuosina 1920-1989 Kauppaneuvos Rafael Haarlan perustama Haarlan Paperitehdas Oy.
Nykyään kiinteistössä toimii lukuisia eri alojen toimijoita, ja tilat on remontoitu uudenaikaisiksi, kuitenkin vanhaa tehdasrakennusta kunnioittaen.
Rakennus sijaitsee Rantatunnelin länsipuolen tunnelin suulla ja sinne on erittäin hyvät kulkuyhteydet niin omalla autolla kuin ratikalla tai paikallisbussillakin. Pyöräilyreitti kulkee vieressä. Näsijärven rantaan, Santalahden tapahtumapuistoon ja Särkänniemeen on lyhyt matka, samoin keskustan ja Lielahden alueen palveluihin. Paasikiven tien liikenne on erittäin vilkas ja näkyvyys kiinteistölle erittäin hyvä.
Pihassa on runsaasti pysäköintitilaa ja asiakaspysäköinnit sekä peruspysäköintipaikat vuokralaisille ovat ilmaisia. Lämmitystolpallisia paikkoja vuokrataan hyvin kohtuulliseen hintaan. Vanhassa pihan kaarihallissa sijaitsee lounas-kahvio.
Vapautumassa monikäyttöistä toimistotilaa B-rapun 1. kerroksesta. Tilan koko on 89m2. Se koostuu kahdesta toimistohuoneesta sekä wc-tiloista.
Tervetuloa tutustumaan, varaathan välittäjältä oman esittelyaikasi. Voit kysyä meiltä myös muita sopivia vaihtoehtoja, kauttamme löydät juuri Teidän tarpeisiinne sopivat tilat. Palvelumme on tilanhakijalle veloitukseton!
Bertel Strömmerin suunnittelemassa tehdasrakennuksessa toimi vuosina 1920-1989 Kauppaneuvos Rafael Haarlan perustama Haarlan Paperitehdas Oy.
Nykyään kiinteistössä toimii lukuisia eri alojen toimijoita, ja tilat on remontoitu uudenaikaisiksi, kuitenkin vanhaa tehdasrakennusta kunnioittaen.
Rakennus sijaitsee Rantatunnelin länsipuolen tunnelin suulla ja sinne on erittäin hyvät kulkuyhteydet niin omalla autolla kuin ratikalla tai paikallisbussillakin. Pyöräilyreitti kulkee vieressä. Näsijärven rantaan, Santalahden tapahtumapuistoon ja Särkänniemeen on lyhyt matka, samoin keskustan ja Lielahden alueen palveluihin. Paasikiven tien liikenne on erittäin vilkas ja näkyvyys kiinteistölle erittäin hyvä.
Pihassa on runsaasti pysäköintitilaa ja asiakaspysäköinnit sekä peruspysäköintipaikat vuokralaisille ovat ilmaisia. Lämmitystolpallisia paikkoja vuokrataan hyvin kohtuulliseen hintaan. Vanhassa pihan kaarihallissa sijaitsee lounas-kahvio.
Vapautumassa monikäyttöistä toimistotilaa B-rapun 1. kerroksesta. Tilan koko on 89m2. Se koostuu kahdesta toimistohuoneesta sekä wc-tiloista.
Tervetuloa tutustumaan, varaathan välittäjältä oman esittelyaikasi. Voit kysyä meiltä myös muita sopivia vaihtoehtoja, kauttamme löydät juuri Teidän tarpeisiinne sopivat tilat. Palvelumme on tilanhakijalle veloitukseton!
Vapautuu
Kysy
Kerros
1
Ota yhteyttä
Tuloskiinteistöt Oy
Finlaysoninkatu 4, 33210 Tampere
Näytä puhelinnumero
050 502 4639
Tara Särkinen
Commercial Real Estate Advisor
Näytä puhelinnumero
+358443187720
Sanna Eerilä-Vänni
Director, Partner
Näytä puhelinnumero
+358 50 5024639
Pyydä lisätietoa
