Vuokrataan toimistotilat - Helsinki
Annankatu 25, Keskusta, Keskusta, 00100 Helsinki #10857790
Osoite
Annankatu 25, Keskusta, 00100 Helsinki
Tilatyyppi
Toimistotilaa
14 m2
Kiinteistö
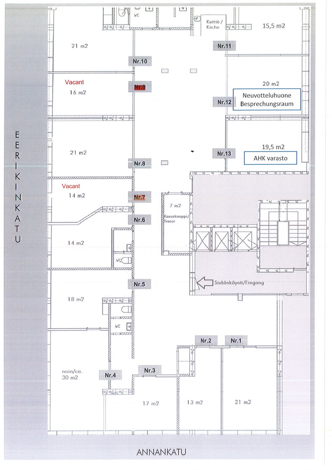
Vuokrataan Kampin keskuksen läheisyydestä kiinteistön 3. kerroksen pientoimistotila 14 m² (huone 7). Vuokralaisten yhteiskäytössä on wc- keittiötila sekä kalustettu neuvotteluhuone. Huoneessa data- ja puhelinkaapelointi.
Vapautuu
Heti
Energiatehokkuusluokka
Ei lain edellyttämää energiatodistusta
Hissi
Ota yhteyttä
Comreal Oy LKV
Tuula Leikas
Näytä puhelinnumero
040 531 3722
Läkkisepänkuja 6, 00620 Helsinki
Comreal on valtakunnallinen, asiantunteva ja aktiivinen kiinteistöalan kumppani, joka palvelee sekä kiinteistönomistajia että toimitilojen käyttäjiä. Toimintamme ydin on yksinkertainen: tarjota erinomaista palvelua kaikille.
Pyydä lisätietoa
