Vuokrataan toimistotilat - Espoo
Vänrikinkuja 3, Perkkaa, 02600 Espoo #10857737
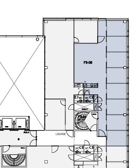
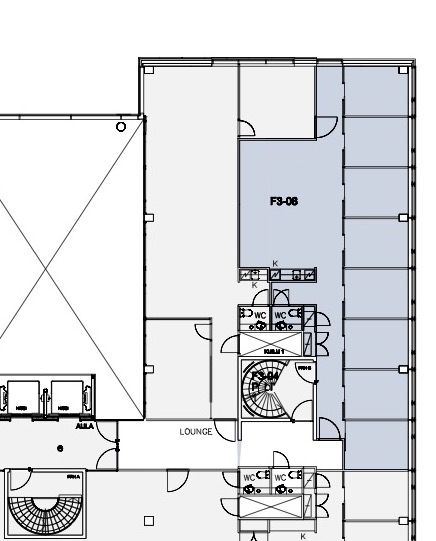
Vuokrataan 3. kerroksen toimitilaa 161 m2. Tilassa työhuoneita, neuvotteluhuone sekä oma keittiö. Toimistotila 141 m2 + jyvitetty osuus krs-auloista 20 m2.
Espoon Polaris Business Parkin Capella-talossa vapaana erilaisia toimitiloja.Tilat ovat modernit, edustavat ja helposti asiakkaan tarpeiden mukaiseksi muunneltavia. Vuokralaisilla on käytettävissä Polariksen laadukas ja kattava palveluvalikoima.
Business Park sijaitsee näkyvällä paikalla, erinomaisten kulkuyhteyksien varrella, lähellä Leppävaaraa. Ilmoitettu nelimäärä sisältää jyvityksen yhteiskäyttöisistä alulatiloista.
Polaris Business Parkin kokonaisuuteen kuuluu yli 600 autopaikkaa sisältävä parkkitalo ja lisäksi n. 50 pihapaikkaa.
Lisätietoja 020 7290 710. Lisää kohteita www.premises.fi
Energialuokka DKerros: 3
CRE PREMISES
Puh. Näytä puhelinnumero 020 7290 710
Vantaankoskentie 14
01670 VANTAA
