Vuokrataan - Helsinki
Hankasuontie 3, Konala, 00390 Helsinki #10857694
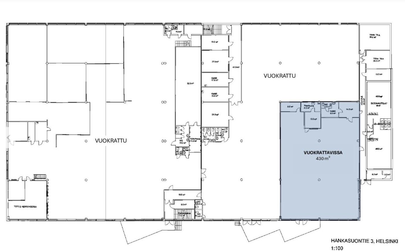
Vuokrataan ensimmäisen kerroksen 430 m2 korkeaa (n. 5 m) varastotilaa Konalassa. Tilaan on oma lastauslaituriyhteys mikä mahdollistaa sujuvan tavaraliikenteen. Tila on esteetön ja soveltuu erinomaisesti yritykselle, joka tarvitsee toimivaa ja tehokasta varastotilaa.
Kiinteistö sijaitsee näkyvällä paikalla Hankasuontien teollisuus- ja yritysalueella, aivan Vihdintien tuntumassa, hyvien liikenneyhteyksien varrella. Pysäköintipaikkoja kiinteistön takana sijaitsevalta piha-alueelta.
Tila vapautuu 1.5.2026 alkaen.
Kysy lissää: jouko.raitanen@rhg.fi/0504695444
RHG Real Estate
Hämeenkatu 2 B20, 20500 Turku
Jouko Raitanen
Näytä puhelinnumero
050 469 5444
