Vuokrataan toimistotilat - Lahti
Askonkatu 9, Askonalue, 15100 Lahti #10857680
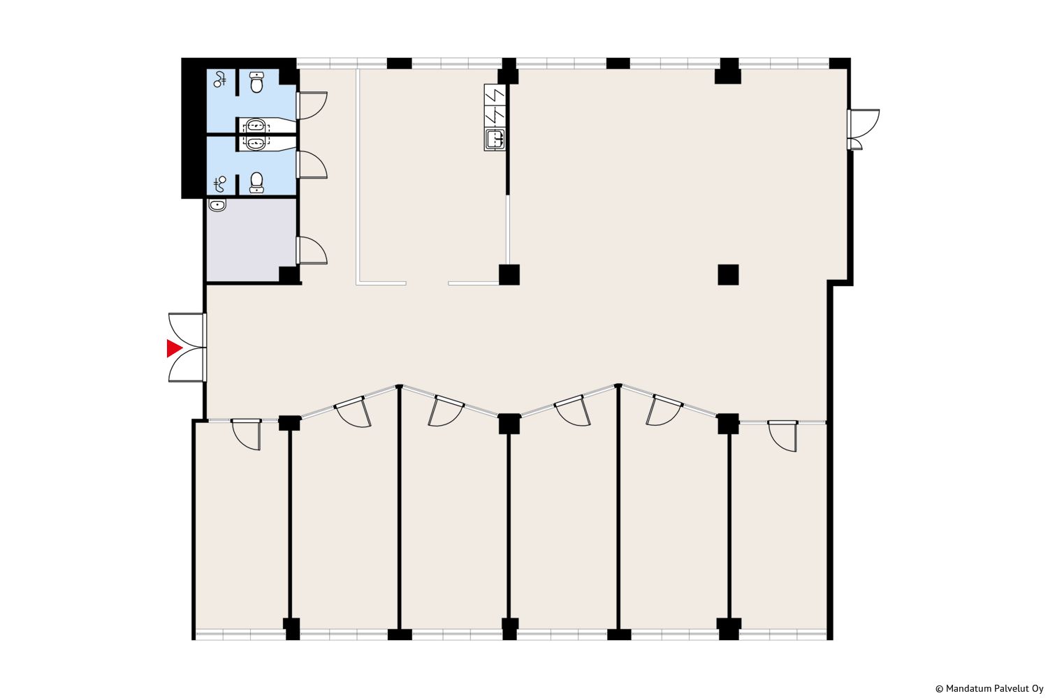
Historiallisen Askotalon 4. kerroksessa sijaitseva toimisto. Tilassa pieni taukotila ja useita toimistohuoneita, avotoimisto sekä wc:t. Hissillä pääsee kerrokseen. Toimiston ikkunanäkymät Mannerheiminkadun ja sisäpihan suuntaan. Talon ensimmäisessä kerroksessa kahvila- ja lounasravintola sekä eri kokoisia koulutus- ja neuvotteluhuoneita.
Ota yhteyttä, kerromme mielellämme lisää.
Osoite
Askonkatu 9, 15100 Lahti
Tilatyyppi
Toimistotilaa
280 m2
Kiinteistö
Askotalo
Pysäköinti
Kiinteistön lähistöllä on useita pysäköintialueita.
Palvelut
Henkilöstöravintola, catering, vuokrattavia neuvottelutiloja, tietotekniikkapalvelut, videoneuvottelu
Muuta
Tilan ominaisuudet: tilassa on ilmastointi, avo-/kombitoimisto
Vapautuu
Vapautumassa oleva
Kerros
4.
Energiatehokkuusluokka
C
Ota yhteyttä
Mandatum Palvelut Oy
Bulevardi 56, 00120 Helsinki
Näytä puhelinnumero
020 031 100
Simo Niemelä
Näytä puhelinnumero
040 869 1096
Pyydä lisätietoa
